1 / 15
DOMEK W GÓRACH WISŁA NOWY OD ZARAZ INWESTYCJA VAT 23%
ul. Na Groń, Wisła, cieszyński, śląskie
- Liczba pokoi
- 3 pokoje
- Cena za metr kwadratowy
- 60 m²
1 / 15
DOMEK W GÓRACH WISŁA NOWY OD ZARAZ INWESTYCJA VAT 23%
ul. Na Groń, Wisła, cieszyński, śląskie
1 / 10
Dom z dużą, malowniczą działką - Krzywa, gm. Bielsk Podlaski
Krzywa, Bielsk Podlaski, bielski, podlaskie
Oferta prywatna
1 / 13
Całoroczne domy w zabudowie szeregowej nad morzem! Bez pośredników!
Sarbinowo, Mielno, koszaliński, zachodniopomorskie
1 / 6
Dom na sprzedaż - Jarosław
Jarosław, jarosławski, podkarpackie
1 / 4
Dom w Mikołajkach
Mikołajki, Mikołajki, mrągowski, warmińsko-mazurskie
1 / 10
Piękny dom nad morzem
Gnieżdżewo, Puck, pucki, pomorskie
1 / 9
Dom wolnostojący do remontu- ul. Tyniecka Skawina
ul. Tyniecka, Skawina, Skawina, krakowski, małopolskie
1 / 17
Komfortowy dom z garażem do wprowadzenia
Dąbie, Zawodzie-Dąbie, Częstochowa, śląskie
1 / 8
Dom z 8 arową Dzałką, Garażem, Dużym Salonem!
Głogoczów, Myślenice, myślenicki, małopolskie
1 / 17
Nowy domek letniskowy przy lesie – Ossa | bezpośrednio| Bez PCC
Ossa, Białaczów, opoczyński, łódzkie
1 / 20
Dom na sprzedaż pow. Konin, duża działka
Golina-Kolonia, Golina, koniński, wielkopolskie
1 / 18
Dom w Bieszczadach
Ustrzyki Dolne, Ustrzyki Dolne, bieszczadzki, podkarpackie
1 / 21
Szczecin/Binowo-piękny dom
Binowo, Stare Czarnowo, gryfiński, zachodniopomorskie
1 / 15
Nowy, piękny dom drewniany, działka 1350m, blisko las-do zamieszkania.
ul. Leśna, Michałów-Reginów, Wieliszew, legionowski, mazowieckie
1 / 21
Dom wolnostojący 8 km do Słupska
Głobino, Słupsk, słupski, pomorskie
1 / 14
Super stan - dom mieszkalno-usługowy Oława
Ścinawa Polska, Oława, oławski, dolnośląskie
1 / 10
Całoroczny domek 50 m² nad wodą | Olza
Olza, Gorzyce, wodzisławski, śląskie
1 / 13
Dom parterowy Studzienice | 119,85 m²
Studzienice, Pszczyna, pszczyński, śląskie
1 / 7
Nowoczesny bliźniak 107m2 duży ogród Sobótka widok Ślężę bez PCC
Sobótka, Sobótka, wrocławski, dolnośląskie
1 / 10
Sprzedam domek letniskowy typu BRDA
ul.Nad Zalewem, Siewierz, Siewierz, będziński, śląskie
1 / 14
Dom w centrum Chełmna!
Chełmno, chełmiński, kujawsko-pomorskie
1 / 13
Dom z garażem w Bogdańcu
ul. Słowiańska, Bogdaniec, Bogdaniec, gorzowski, lubuskie
1 / 9
3-pokojowy dom 62m2 + ogródek Bez Pośredników
Mały Skręt, Ruda Pabianicka, Górna, Łódź, łódzkie
1 / 18
Dom całoroczny nad jeziorem Bory Tucholskie
Kruszka, Cekcyn, tucholski, kujawsko-pomorskie
1 / 6
ul. Szklarniowa, Sulejówek, miński, mazowieckie
3-pokojowy dom 68m2 + ogródek Bezpośrednio
3-pokojowy dom 68m2 + ogródek Bez Prowizji
1 / 17
Apartament 100 m² na Zatorzu - jedyny taki w okolicy
Leszno, wielkopolskie
1 / 11
ul. Zygmunta Sierakowskiego, Stare Chojny, Górna, Łódź, łódzkie
3-pokojowy dom 65m2 + ogródek Bez Prowizji
3-pokojowy dom 65m2 + ogródek Bez Prowizji
1 / 7
Duża działka z domem do rozbiórki
ul. Słoneczna, Świbie, Wielowieś, gliwicki, śląskie
1 / 15
3 pokoje z ogrodem |Osów | parter | 2 miejsca post.| Alternatywa domu
Osów, Zachód, Szczecin, zachodniopomorskie
1 / 9
3-pokojowy dom 65m2 + ogródek Bez Pośredników
ul. Janczewicka, Słomin, Raszyn, pruszkowski, mazowieckie
1 / 7
3-pokojowy dom 60m2 + ogródek Bezpośrednio
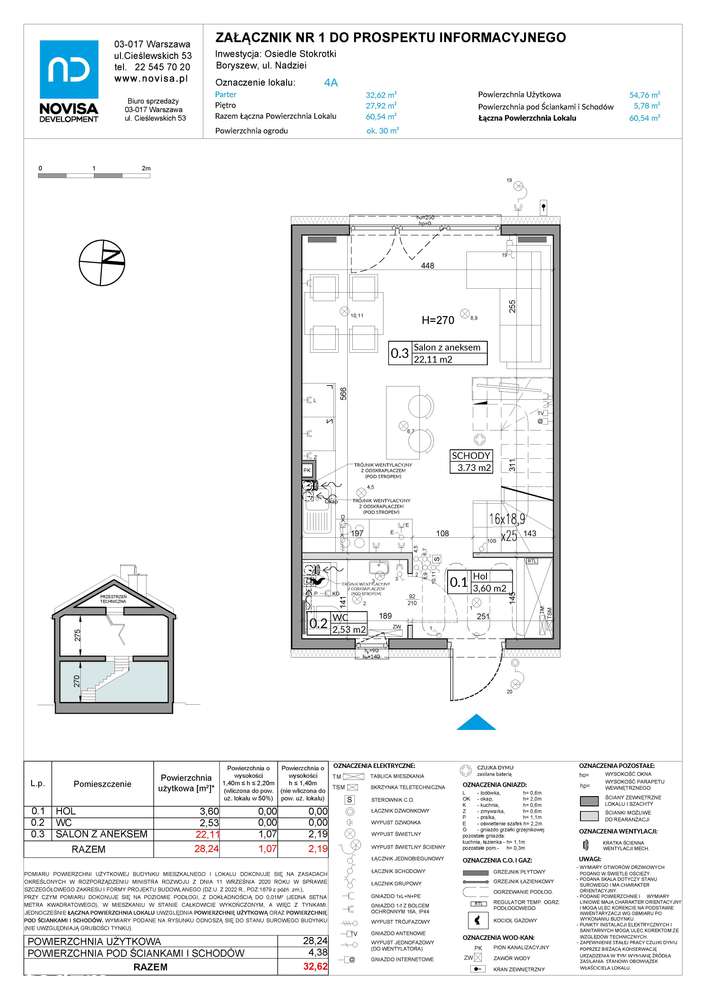
ul. Nadziei, Boryszew, Wiązowna, otwocki, mazowieckie
1 / 10
Dom w Szczytnikach przy pętli autobusowej
ul. Szczytniki dom przy pętli autobusowej, Szczytniki, Kórnik, poznański, wielkopolskie
Patryk Kaczmarek
Opiekun oferty
1 / 16
Nowa Inwestycja – Domy Premium przy ul. Pienińskiej w Tarnowie
ul. Pienińska, Tarnów, małopolskie
1 / 18
Dom na sprzedaż - blisko natury gotowy do zamieszkania
Rycerzewko, Świdwin, świdwiński, zachodniopomorskie
