W budowie
1 / 2
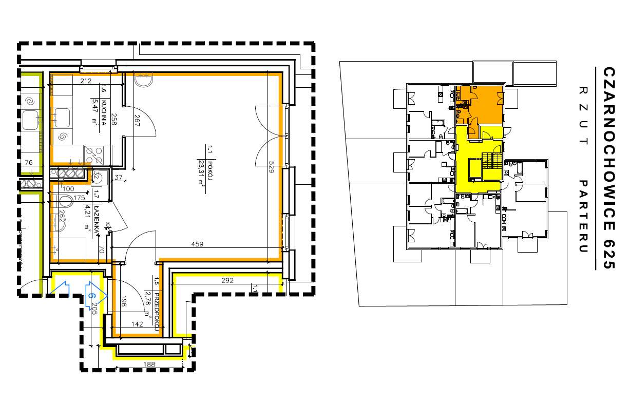
Czarnochowice, Wieliczka, wielicki, małopolskie
od 80 zł/m²
- Szacowana realizacja inwestycji
- 4 kwartał 2025
- Cena za metr kwadratowy
- 55-69 m²
Zobacz opis ogłoszenia
Zobacz opis ogłoszenia
Do wynajęcia lokale użytkowe na nowoczesnym osiedlu ECCO PANORAMA w Czarnochowicach 591, gmina Wieliczka przy ul. Długa . Lokale znajdują się w dwóch pięciokondygnacyjnych budynkach o wysokim standard...
Deweloper
