1 / 21
ul. Bartosza Głowackiego, Bronowice, Bronowice, Kraków, małopolskie
- Szacowana realizacja inwestycji
- 2 kwartał 2025
- Liczba pokoi
- 1-4 pokoje
- Cena za metr kwadratowy
- 25-62 m²
Zobacz opis ogłoszenia
2-pokojowe mieszkanie 45m2 + balkon Bezpośrednio
745 712 zł16 520 zł/m²- Liczba pokoi
- 2 pokoje
- Cena za metr kwadratowy
- 45.14 m²
3-pokojowe mieszkanie 59m2 + balkon Bez Prowizji
1 004 428 zł16 850 zł/m²- Liczba pokoi
- 3 pokoje
- Cena za metr kwadratowy
- 59.61 m²
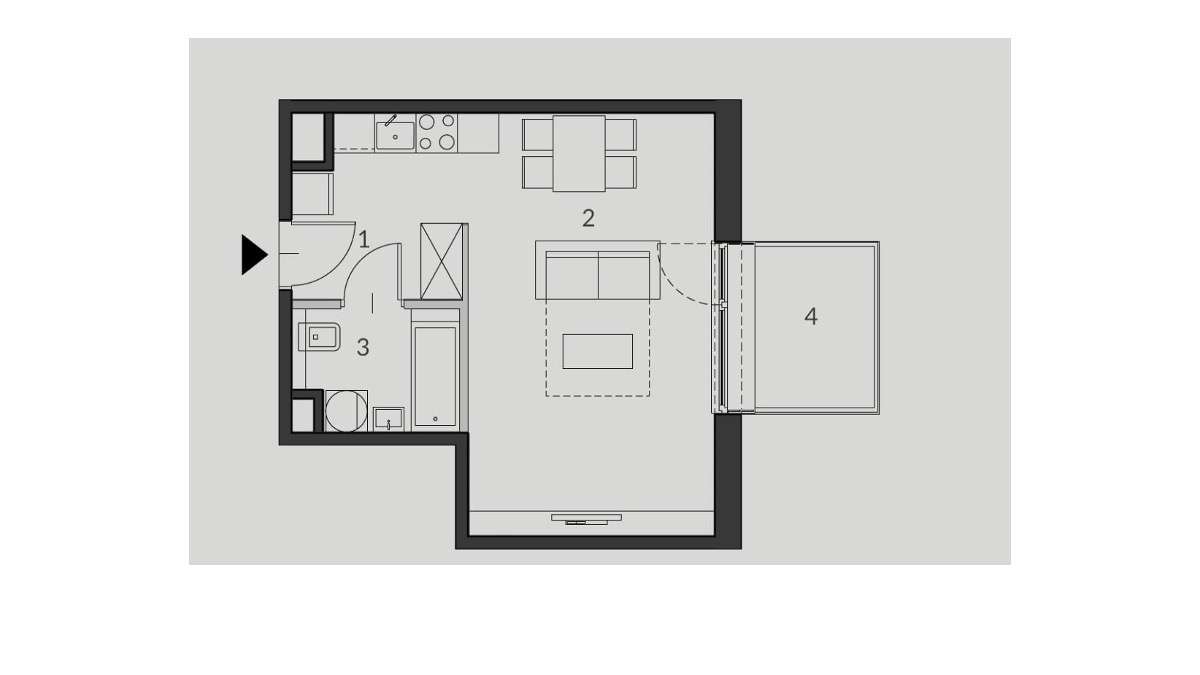
1-pokojowe mieszkanie 25m2 + balkon Bezpośrednio
518 056 zł20 300 zł/m²- Liczba pokoi
- 1 pokój
- Cena za metr kwadratowy
- 25.52 m²
4-pokojowe mieszkanie 55m2 + balkon
996 493 zł17 900 zł/m²- Liczba pokoi
- 4 pokoje
- Cena za metr kwadratowy
- 55.67 m²
