1 / 9
ul. Leśna, Świemirowo, Sopot, pomorskie
- Szacowana realizacja inwestycji
- 1 kwartał 2026
- Liczba pokoi
- 2-4 pokoje
- Cena za metr kwadratowy
- 40-106 m²
Zobacz opis ogłoszenia
4-pokojowe mieszkanie 84m2 + ogródek Bez Prowizji
2 299 206 zł27 326 zł/m²- Liczba pokoi
- 4 pokoje
- Cena za metr kwadratowy
- 84.14 m²
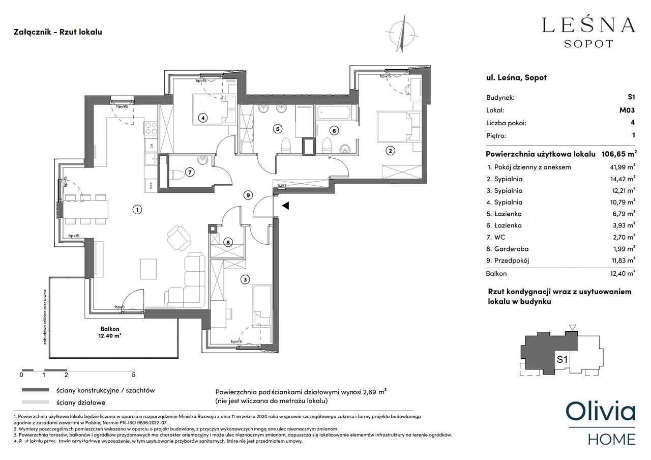
4-pokojowe mieszkanie 106m2 + balkon Bezpośrednio
3 053 564 zł28 632 zł/m²- Liczba pokoi
- 4 pokoje
- Cena za metr kwadratowy
- 106.65 m²
