1 / 17
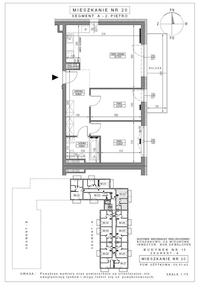
410 000 zł7193 zł/m²
Bogdanowo komfortowe mieszkanie - rynek pierwotny!
Bogdanowo, Oborniki, obornicki, wielkopolskie
- Liczba pokoi
- 3 pokoje
- Cena za metr kwadratowy
- 57 m²
- Piętro
- 2 piętro
Zobacz opis ogłoszenia
Zobacz opis ogłoszenia
Biuro nieruchomości Quality przedstawia Państwu na sprzedaż atrakcyjne, narożnikowe mieszkanie z balkonem o łącznej powierzchni 57,00 m², zlokalizowane na drugim piętrze nowego budynku z windą na Osie...
QUALITY NIERUCHOMOŚCIBiuro nieruchomości
