1 / 13
440 000 zł6906 zł/m²
Apartament k/Ustronia
Bładnice Dolne, Skoczów, cieszyński, śląskie
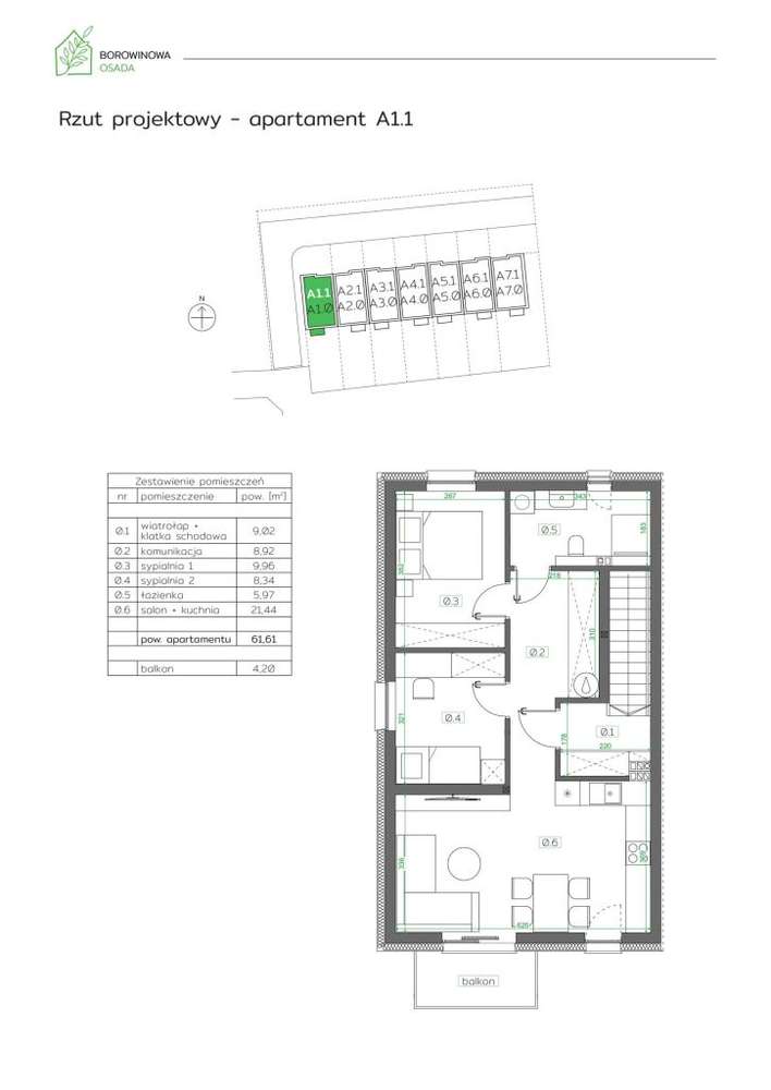
- Liczba pokoi
- 3 pokoje
- Cena za metr kwadratowy
- 63.71 m²
- Piętro
- 1 piętro
Zobacz opis ogłoszenia
Zobacz opis ogłoszenia
BOROWINOWA OSADA etap 2Nowoczesne apartamenty w Bładnicach Dolnych k/UstroniaSpokojna okolica, zaledwie:-2 km od centrum Skoczowa-10 minut od centrum Ustronia-szybki dojazd do węzła trasy S52 Bielsko-...
nieruchomoscipoludnie.com.plBiuro nieruchomości
