1 / 8
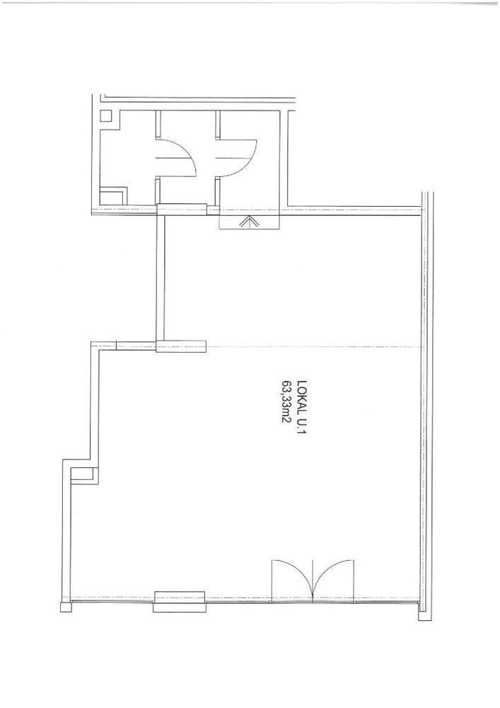
1 390 000 zł10 072 zł/m²
Gotowiec inwestycyjny w Centrum Piaseczna - Na sprzedaż
ul. Jana Pawła II, Piaseczno, Piaseczno, piaseczyński, mazowieckie
- Cena za metr kwadratowy
- 138 m²
- Piętro
- 1 piętro
Metrohouse Piaseczno RaszyńskaBiuro nieruchomości
