1 / 8
4 900 000 zł6298 zł/m²
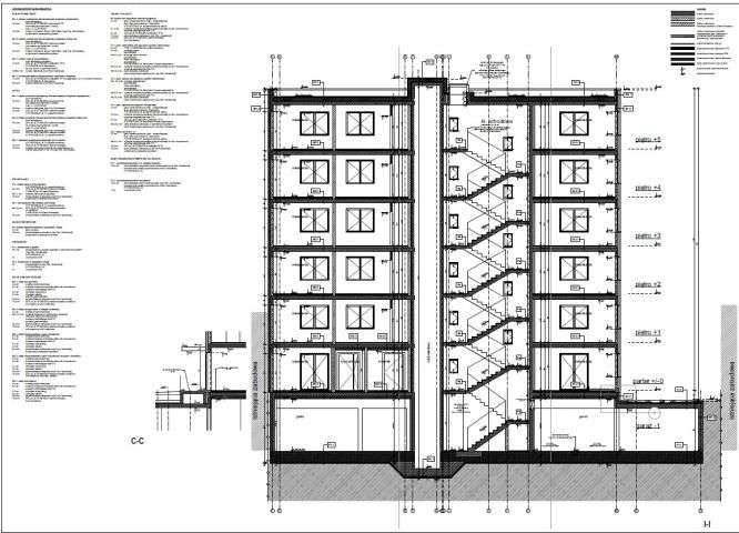
działka z projektem i pozwoleniem. Pum 1058 M
Nowa Praga, Praga-Północ, Warszawa, mazowieckie
- Cena za metr kwadratowy
- 778 m²
Zobacz opis ogłoszenia
Zobacz opis ogłoszenia
Oferta Biura Nieruchomości dla deweloperaSzanowni Państwo,mamy przyjemność zaproponować do sprzedaży zabudowaną działkę w Warszawie, w pobliżu Stacji Metra Bródno. W kwadracie ulic Słubicka, Hieronima...
Biuro nieruchomości
