1 / 3
ul. Sierakowska, Osów, Zachód, Szczecin, zachodniopomorskie
- Szacowana realizacja inwestycji
- 2 kwartał 2027
- Liczba pokoi
- 5 pokoi
- Cena za metr kwadratowy
- 150-176 m²
Zobacz opis ogłoszenia
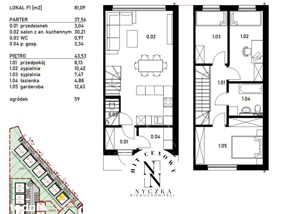
Wolnostojący dom jednorodzinny
1 899 000 zł10 790 zł/m²- Liczba pokoi
- 5 pokoi
- Cena za metr kwadratowy
- 176 m²
Wolnostojący dom jednrodzinny
1 699 000 zł11 327 zł/m²- Liczba pokoi
- 5 pokoi
- Cena za metr kwadratowy
- 150 m²
