1 / 5
980 000 zł7133 zł/m²
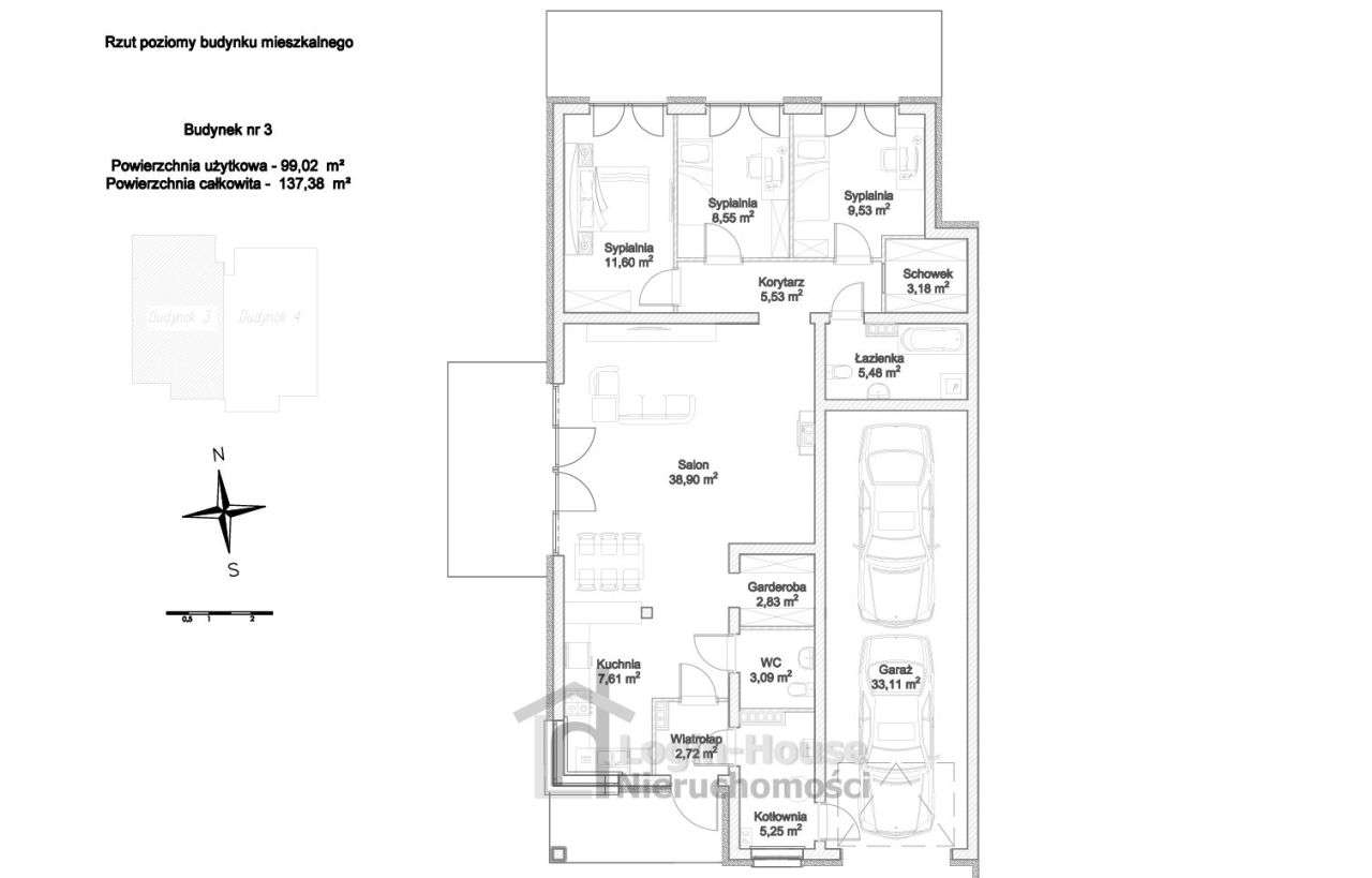
Parterowy bliźniak pod Lublinem
ul. Księżycowa, Dominów, Głusk, lubelski, lubelskie
- Liczba pokoi
- 4 pokoje
- Cena za metr kwadratowy
- 137.38 m²
Zobacz opis ogłoszenia
Zobacz opis ogłoszenia
Bliźniak w Dominowie idealny dla rodzinyZamieszkaj w spokojnej, zielonej okolicy w Dominowie, zaledwie 20 min od centrum Lublina! Ponad 137 m2, 4 komfortowe pokoje, otwarta przestrze...
