949 000 zł
Gotowy/Apartament/ taras - 40m2/garaż - 33 m2
ul. Legionistów, Budziwój, Rzeszów, podkarpackie
- Liczba pokoi
- 5 pokoi
- Powierzchnia
- 105 m²
- Cena za metr kwadratowy
- 9038 zł/m²
- Piętro
- 1 piętro
Zobacz opis ogłoszenia
Zobacz opis ogłoszenia
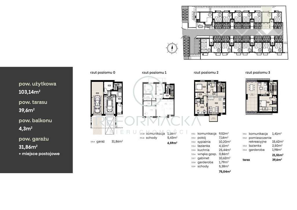
Biuro Reformacka Nieruchomości przedstawia 5 pokojowy, dwupoziomowy apartament o powierzchni 105 m2, wchodzący w skład wyjątkowej inwestycji w standardzie premium.Koncepcja zakłada budowę dwóch zespoł...
