530 000 zł
Na sprzedaż w pełni wykończone mieszkanie - Konin os. Mędzylesie
Konin, wielkopolskie
- Liczba pokoi
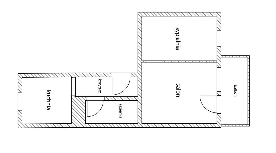
- 3 pokoje
- Powierzchnia
- 56.9 m²
- Cena za metr kwadratowy
- 9315 zł/m²
- Piętro
- parter
Zobacz opis ogłoszenia
Zobacz opis ogłoszenia
Na sprzedaż mieszkanie położone w Koninie przy ul. Sarniej, osiedle Międzylesie.Nowe osiedle, w pobliżu galeria handlowa, sklepy.Nowy budynek mieszkalny z 2024 w zabudowie szeregowej, murowany, ociepl...
