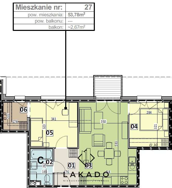
759 000 zł
3 pokojowe mieszkanie Ruczaj Kraków
Jana Kantego Federowicza, Skotniki, Dębniki, Kraków, małopolskie
- Liczba pokoi
- 3 pokoje
- Powierzchnia
- 53.78 m²
- Cena za metr kwadratowy
- 14 113 zł/m²
- Piętro
- 3 piętro
Zobacz opis ogłoszenia
Zobacz opis ogłoszenia
Inwestycja „Ruczaj Park” przy ul. Federowicza położona jest w bliskim sąsiedztwie Uniwersytetu Jagiellońskiego. Ulica Federowicza skomunikowana jest z centrum Krakowa linią szybkiego tramwaju, a w kie...
