5000 zł
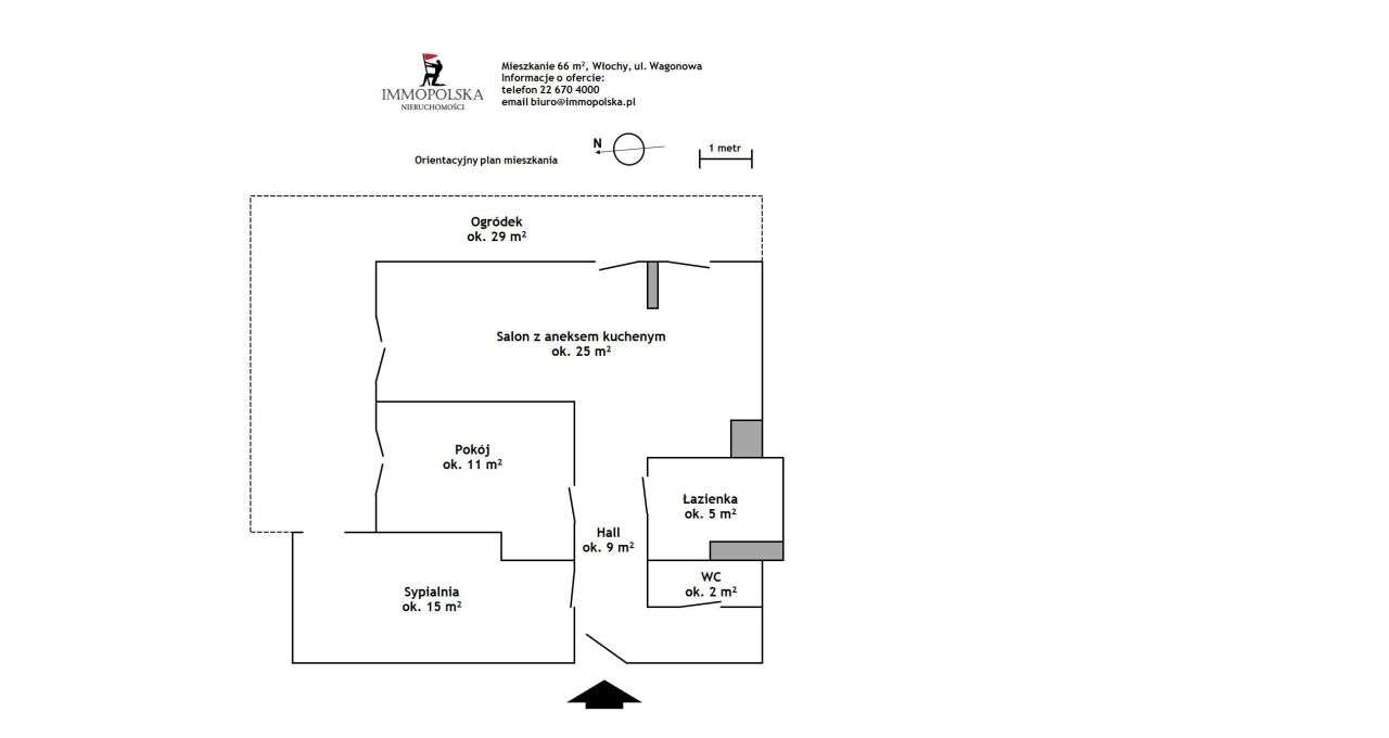
Wagonowa, 3 pokoje z ogródkiem w nowym budynku
ul. Wagonowa, Raków, Włochy, Warszawa, mazowieckie
- Liczba pokoi
- 3 pokoje
- Powierzchnia
- 66 m²
- Piętro
- parter
Zobacz opis ogłoszenia
Zobacz opis ogłoszenia
Oferta biura nieruchomości IMMOPOLSKA (licencja nr 9165) Do wynajęcia częściowo umeblowane trzypokojowe mieszkanie z ogródkiem, w nowoczesnym apartamentowcu przy ul. Wagonowej oddanym do użytku w 2018...
