282 240 zł
Ostoja Przylesie-doskonała lokalizacja
Szpitalna, Leszno, wielkopolskie
- Liczba pokoi
- 1 pokój
- Powierzchnia
- 25.2 m²
- Cena za metr kwadratowy
- 11 200 zł/m²
- Piętro
- 1 piętro
Zobacz opis ogłoszenia
Zobacz opis ogłoszenia
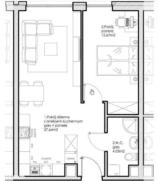
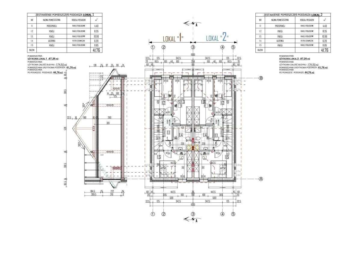
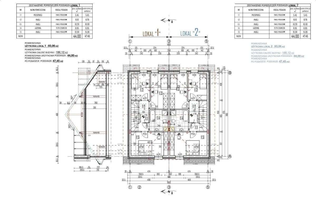
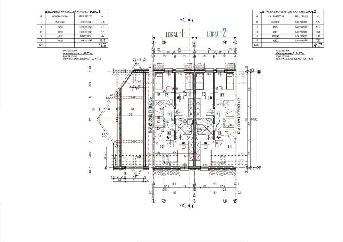
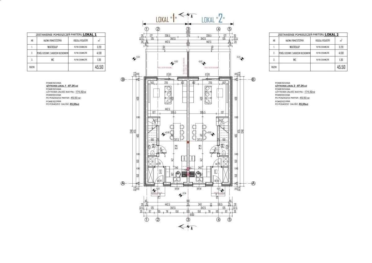
Polecamy atrakcyjne, niskoczynszowe mieszkania o wysokim standardzie deweloperskim w doskonałej lokalizacji Leszna, blisko lasu! Jest to I etap budowy Osiedla Ostoi Przylesie.
W pierwszym etapie bu...
