563 000 zł
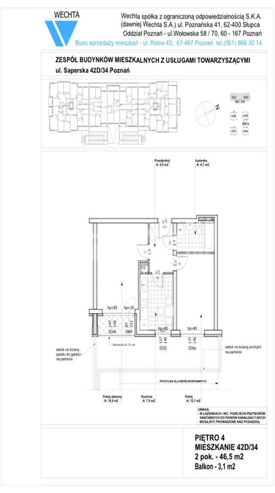
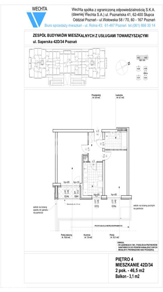
Na sprzedaż mieszkanie ul. Saperska, Poznań.
Saperska, Wilda, Wilda, Poznań, wielkopolskie
- Liczba pokoi
- 2 pokoje
- Powierzchnia
- 46.5 m²
- Cena za metr kwadratowy
- 12 108 zł/m²
- Piętro
- 4 piętro
Zobacz opis ogłoszenia
Zobacz opis ogłoszenia
Polecam do sprzedaży mieszkanie o pow. 46,5 m2 na IV piętrze bloku z windą przy ul. Saperskiej na osiedlu „Pod Platanami”. Przytulne i ciepłe mieszkanie składa się z niezależnych 2 pokoi, oddzielnej k...
