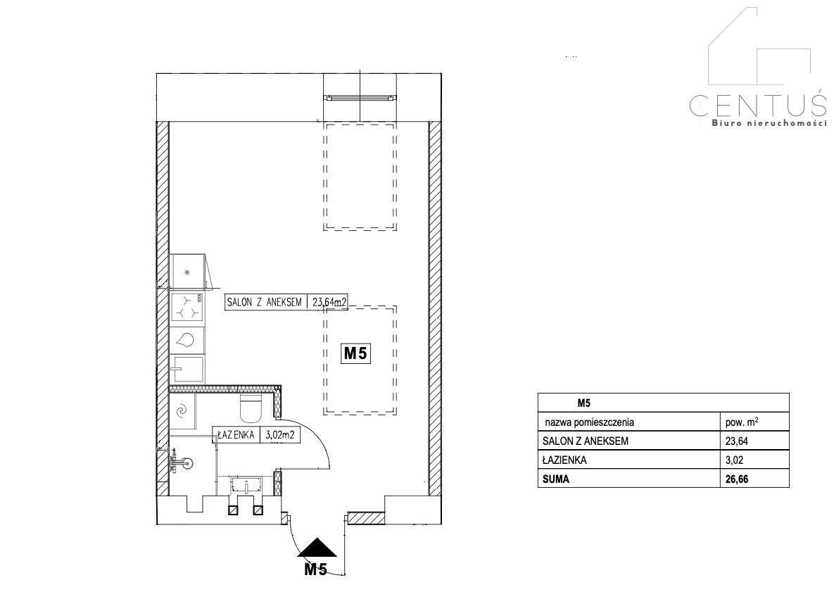
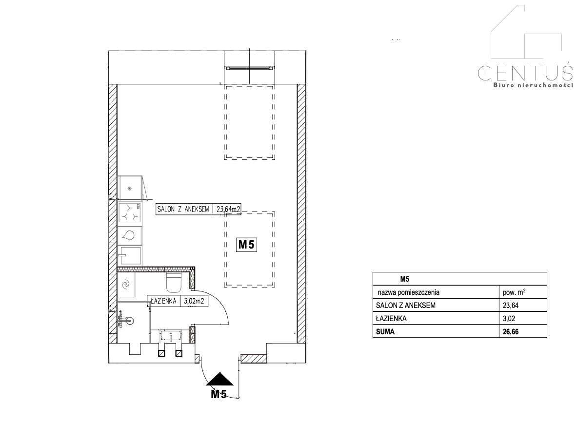
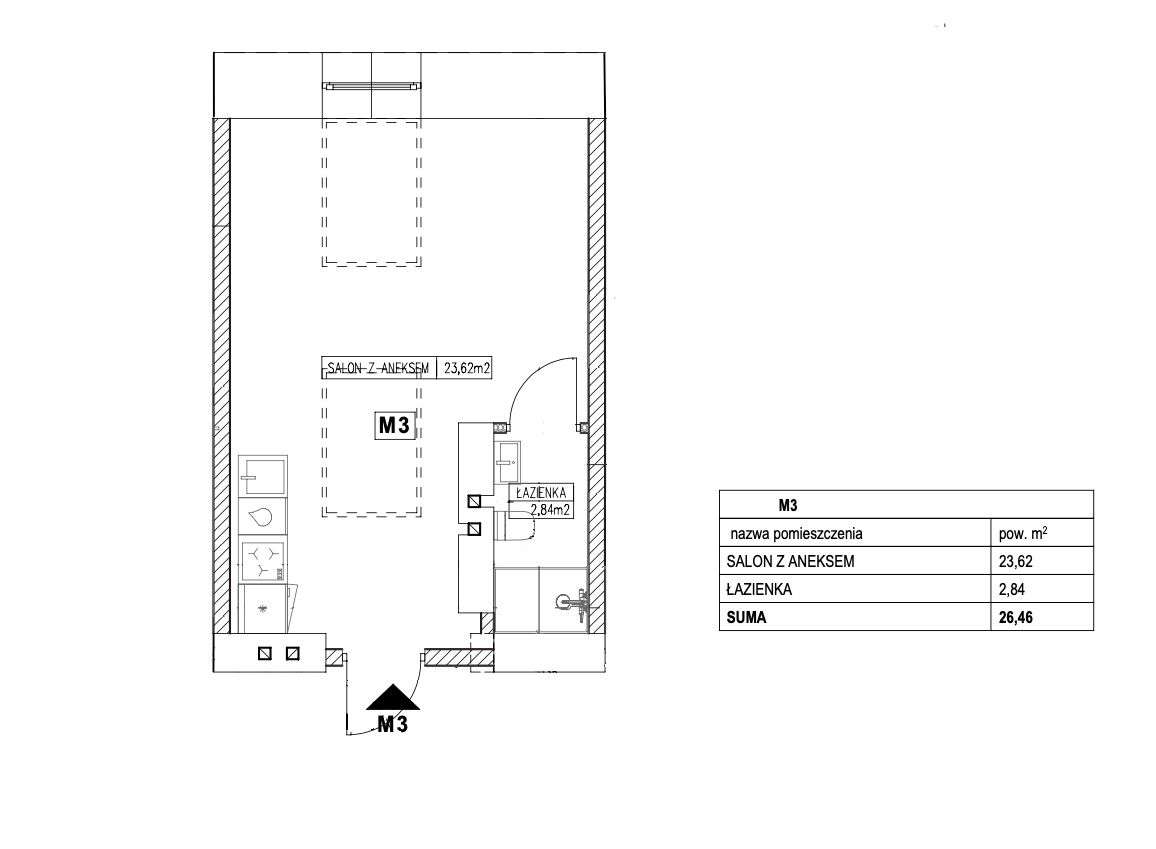
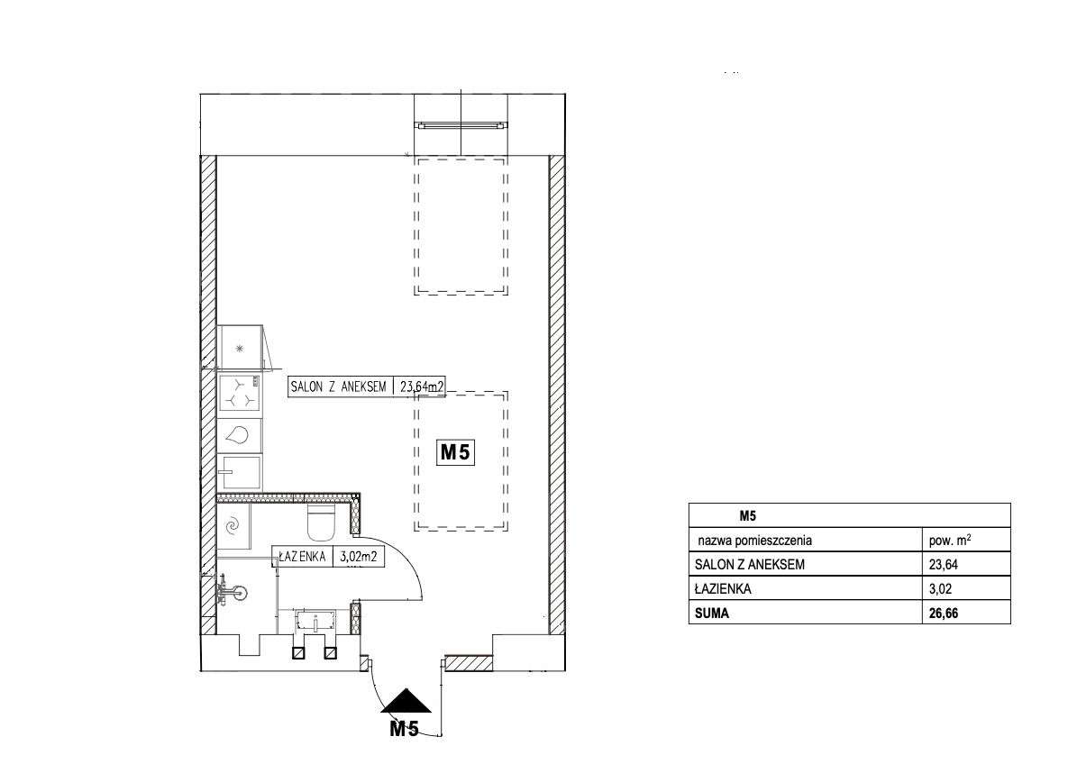
451 000 zł
Ustawna kawalerka przy Pl. Boh. Getta
Stare Podgórze, Podgórze, Kraków, małopolskie
- Liczba pokoi
- 1 pokój
- Powierzchnia
- 26.66 m²
- Cena za metr kwadratowy
- 16 917 zł/m²
- Piętro
- 3 piętro
Zobacz opis ogłoszenia
Zobacz opis ogłoszenia
Oferuję na sprzedaż mieszkanie o powierzchni 26,66m2 na poddaszu kamienicy( wysokość ściany kolankowej ok. 1,90m, natomiast w najwyższym punkcie ok. 3,60m), składające się z pokoju z aneksem kuchennym...
