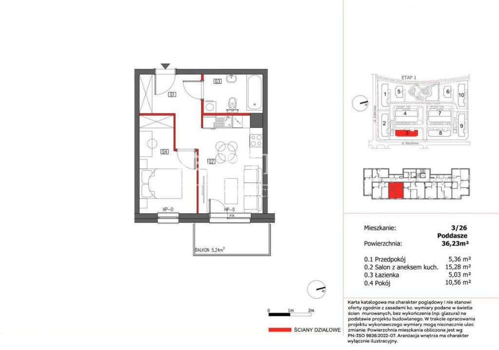
1 / 21
Kajdasza, Jagodno, Krzyki, Wrocław, dolnośląskie
- Szacowana realizacja inwestycji
- 3 kwartał 2025
- Liczba pokoi
- 2-3 pokoje
- Cena za metr kwadratowy
- 53-91 m²
Zobacz opis ogłoszenia
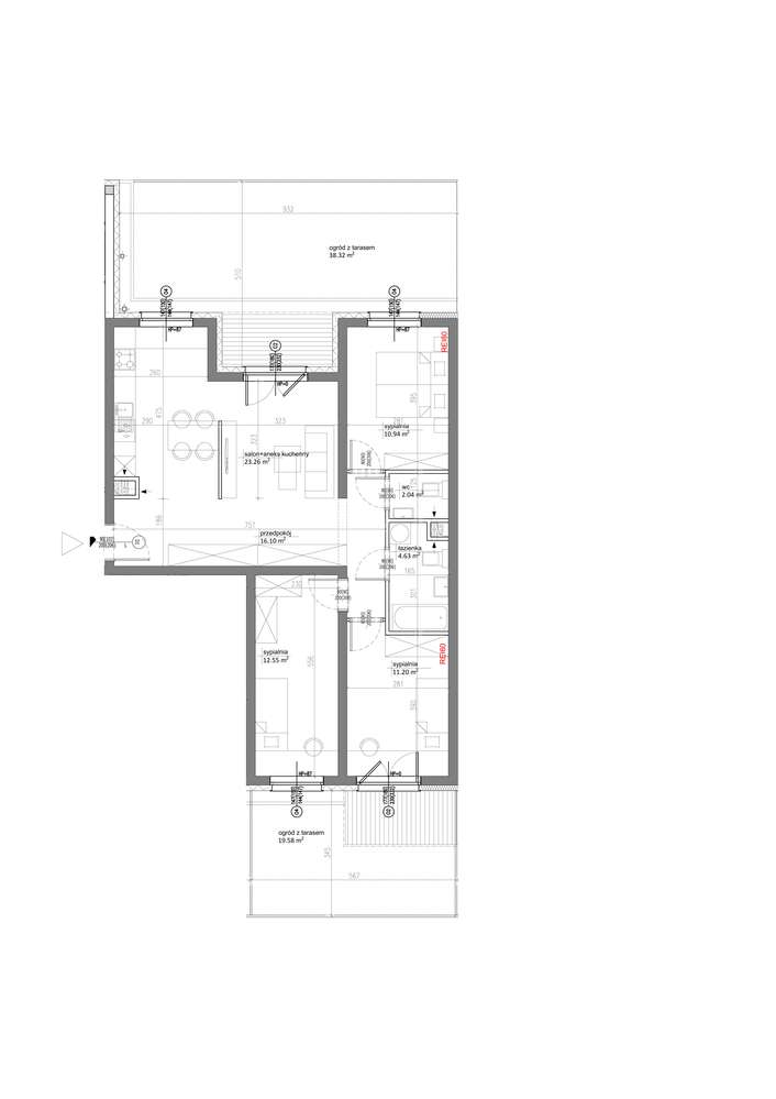
3-pokojowe mieszkanie 62m2 + balkon
680 903 zł10 884 zł/m²- Liczba pokoi
- 3 pokoje
- Cena za metr kwadratowy
- 62.56 m²
2-pokojowe mieszkanie 91m2 + taras Bez Prowizji
1 056 775 zł11 513 zł/m²- Liczba pokoi
- 2 pokoje
- Cena za metr kwadratowy
- 91.79 m²
3-pokojowe mieszkanie 53m2 + loggia Bez Prowizji
688 397 zł12 805 zł/m²- Liczba pokoi
- 3 pokoje
- Cena za metr kwadratowy
- 53.76 m²
3-pokojowe mieszkanie 57m2 + balkon Bezpośrednio
682 463 zł11 927 zł/m²- Liczba pokoi
- 3 pokoje
- Cena za metr kwadratowy
- 57.22 m²
