1 / 10
299 000 zł10 310 zł/m²
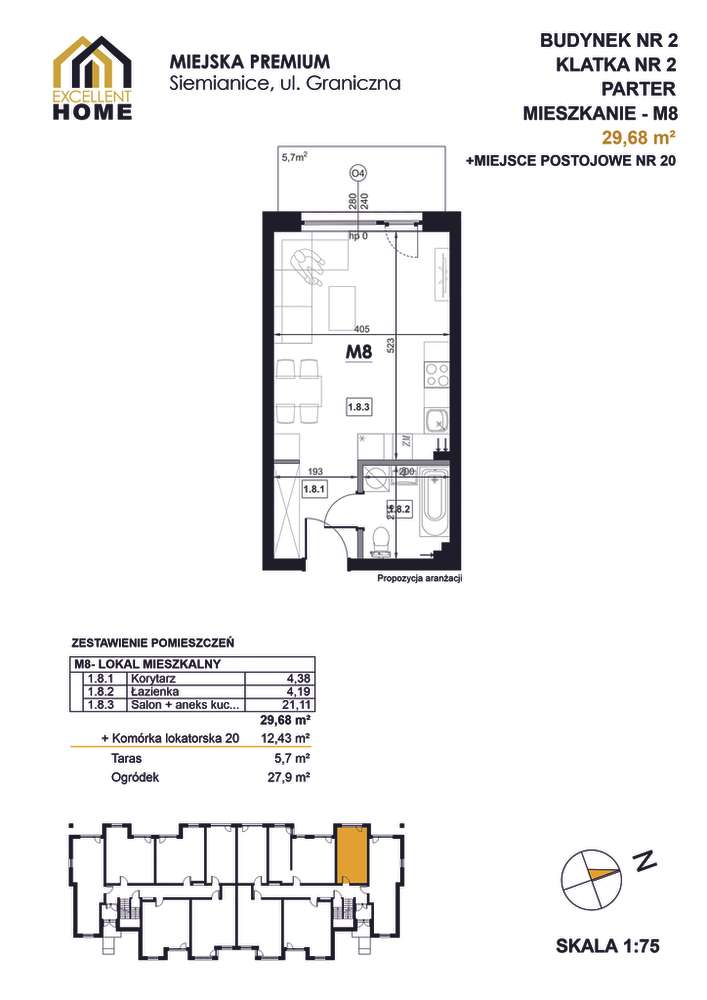
PROMOCJA! Wykończone nowe mieszkanie z ogródkiem w Siemianicach
ul. Graniczna, Siemianice, Słupsk, słupski, pomorskie
- Liczba pokoi
- 1 pokój
- Cena za metr kwadratowy
- 29 m²
- Piętro
- parter
Zobacz opis ogłoszenia
Zobacz opis ogłoszenia
Kawalerka z ogródkiem i miejscem parkingowym – SiemianiceNa sprzedaż nowoczesna kawalerka o powierzchni 29 m², zlokalizowana w spokojnej i rozwijającej się części Siemianic, w nowym budynku z 2025 rok...
adresujemy nieruchomościBiuro nieruchomości
