1 / 6
268 491,80 zł7060 zł/m²
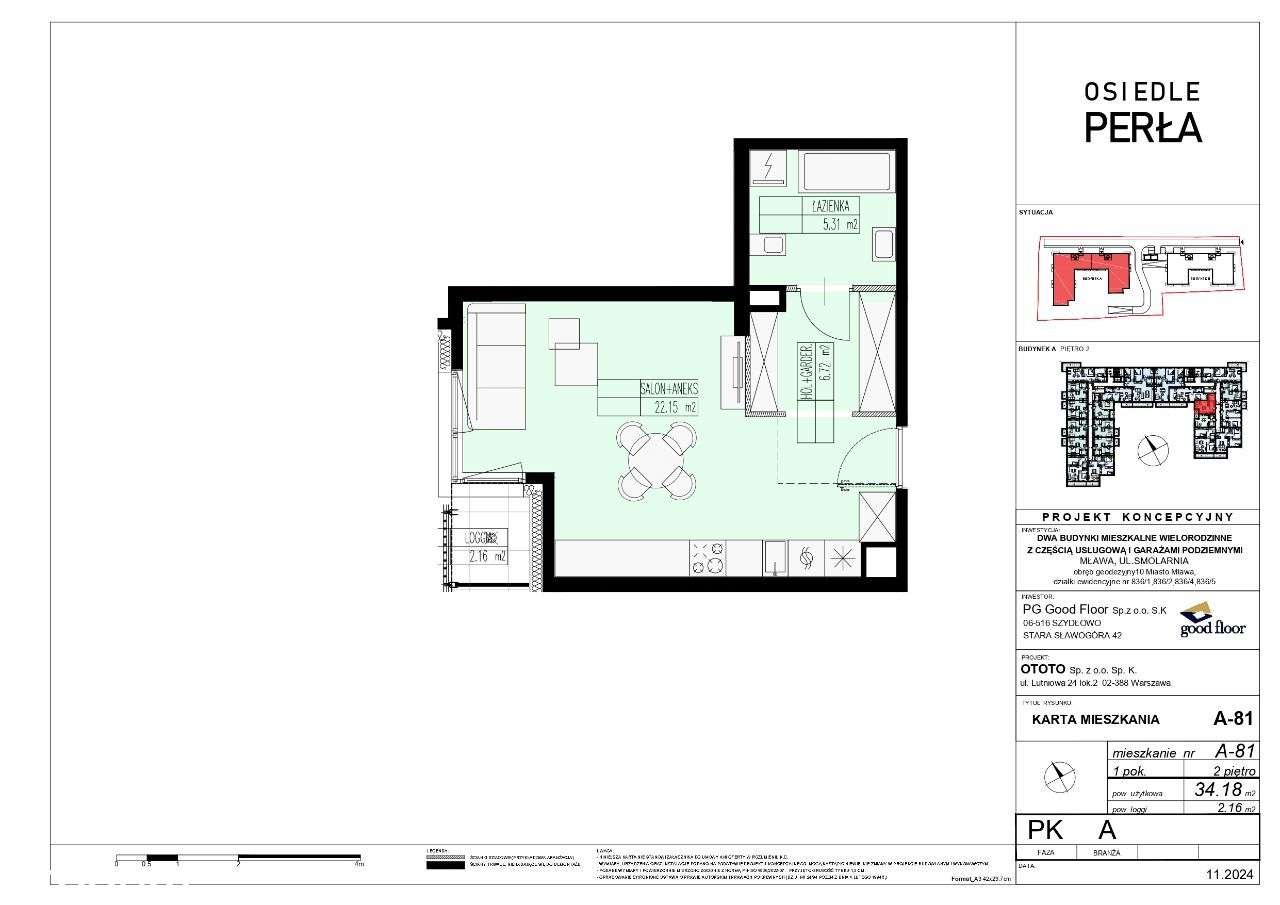
2 POKOJOWE MIESZKANIE - NOVA WARSZAWSKA, MŁAWA
ul. Warszawska, Mława, mławski, mazowieckie
- Liczba pokoi
- 1 pokój
- Cena za metr kwadratowy
- 38.03 m²
- Piętro
- 3 piętro
Zobacz opis ogłoszenia
Zobacz opis ogłoszenia
Nowe mieszkanie 2-pokojowe – Inwestycja Nova Warszawska, MławaOpis nieruchomości:Na sprzedaż nowe, 2-pokojowe mieszkanie o powierzchni 38,03 m², położone w nowoczesnej inwestycji Nova Warszawska w Mła...
Deweloper
