1 / 7
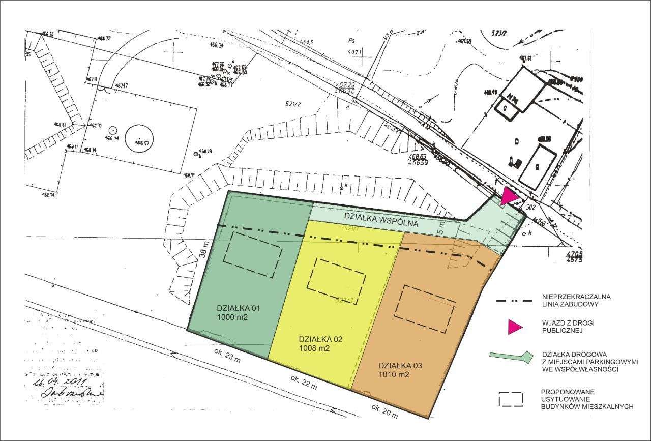
Działka w Górach Sowich
Dzikowiec, Nowa Ruda, kłodzki, dolnośląskie
- Cena za metr kwadratowy
- 1790 m²
1 / 7
Działka w Górach Sowich
Dzikowiec, Nowa Ruda, kłodzki, dolnośląskie
1 / 7
Działka z widokiem na Góry Sowie
Dzikowiec, Nowa Ruda, kłodzki, dolnośląskie
1 / 7
Działka w otoczeniu Gór Sowich
Dzikowiec, Nowa Ruda, kłodzki, dolnośląskie
1 / 4
Działka 1600 m² z mediami i WZ w malowniczej okolicy
ul. Kolonia, Dzikowiec, Nowa Ruda, kłodzki, dolnośląskie
1 / 6
Działka budowlana na sprzedaż-Dzikowiec
Dzikowiec, Nowa Ruda, kłodzki, dolnośląskie
1 / 8
Działka widokowa w Górach Sowich
ul. Dębówka, Dzikowiec, Nowa Ruda, kłodzki, dolnośląskie
Działka budowlana 14 arów – widok na góry – Dzikowiec Kolonia
Dzikowiec, Nowa Ruda, kłodzki, dolnośląskie
