1 / 11
449 000 zł4677 zł/m²
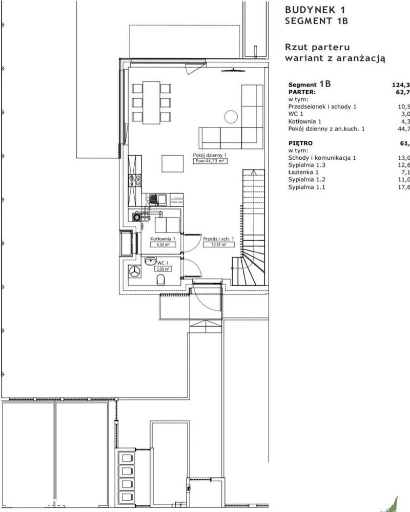
Nowy dom parterowy Nowy Tomyśl - Paproć oś.Kolonia, Glinno Rumiankowa
Paproć, Nowy Tomyśl, nowotomyski, wielkopolskie
- Liczba pokoi
- 3 pokoje
- Cena za metr kwadratowy
- 96 m²
Zobacz opis ogłoszenia
Zobacz opis ogłoszenia
Na sprzedaż nowy dom parterowy – Paproć, os. KoloniaOferuję na sprzedaż nowy parterowy dom o powierzchni użytkowej 96 m², położony na działce o powierzchni 1100 m², w miejscowości Paproć, osiedle Kolo...
Oferta prywatna
