1 / 14
1 190 000 zł12 014 zł/m²
Nowoczesny,parterowy dom na przestronnej działce!
Wilczopole, Głusk, lubelski, lubelskie
- Liczba pokoi
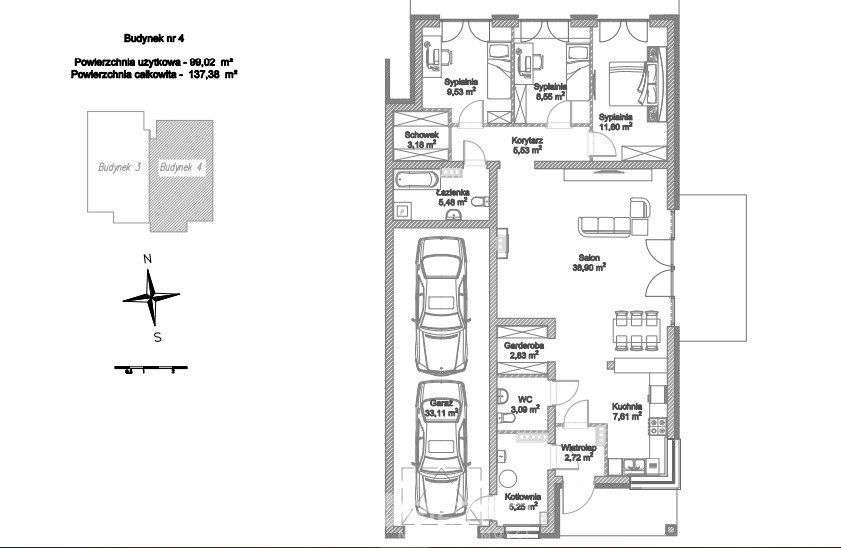
- 4 pokoje
- Cena za metr kwadratowy
- 99.05 m²
Zobacz opis ogłoszenia
Zobacz opis ogłoszenia
Są domy, które po prostu się czuje. Od progu wita Cię przestrzeń, światło i spokój – i właśnie taki jest ten dom w Wilczopolu.Położony na pięknej, 15-arowej działce, wolnostojący dom o powierzchni ok....
Biuro nieruchomości
