1 / 9
829 000 zł9654 zł/m²
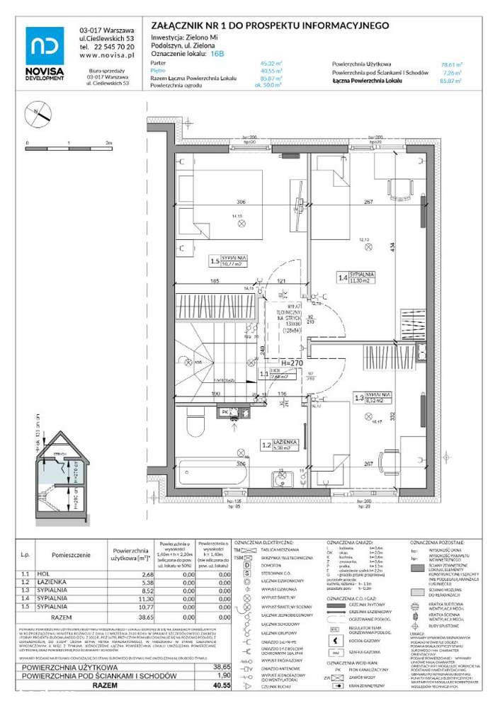
4-pokojowy dom 85m2 + ogródek Bezpośrednio
ul. Zielona, Podolszyn, Lesznowola, piaseczyński, mazowieckie
- Liczba pokoi
- 4 pokoje
- Cena za metr kwadratowy
- 85.87 m²
Zobacz opis ogłoszenia
Zobacz opis ogłoszenia
4-pokojowy dom numer 16B w Inwestycji Zielono mi Dewelopera Novisa DevelopmentRezerwat przyrody Stawy Raszyńskie (7 minut samochodem)Przystanek autobusowy (6 minut spacerem)Lidl (5 minut samochodem),...
