Idź do strony głównej

Mieszk. 2 pok. 38m2, stan deweloperski, dostepne od zaraz

Bieńkowice, Krzyki, Wrocław, dolnośląskie

    Mieszk. 2 pok. 38m2, stan deweloperski, dostepne od zaraz

    430 000 zł
    11 259 zł/m²
    Bieńkowice, Krzyki, Wrocław, dolnośląskie

    Mieszkanie na sprzedaż

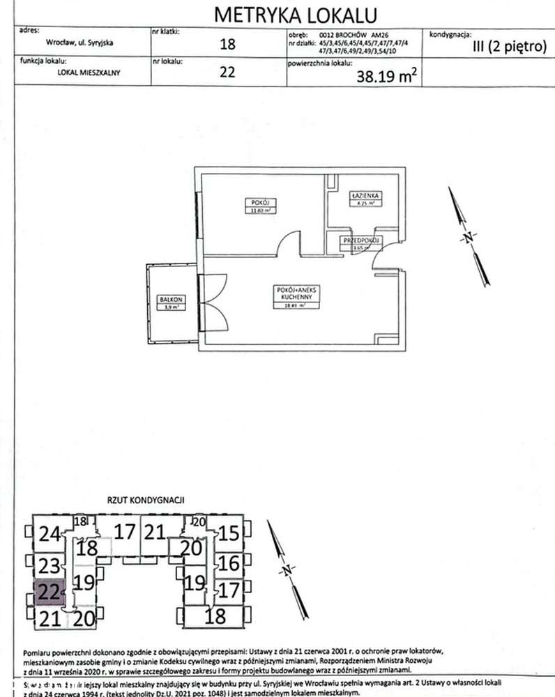
    Powierzchnia:
    38.19 
    Liczba pokoi:
    2
    Ogrzewanie:
    miejskie
    Piętro:
    2
    Czynsz:
    330 zł 
    Stan wykończenia:
    do wykończenia
    Rynek:
    wtórny
    Forma własności:
    pełna własność
    Dostępne od:
    2025-12-26
    Typ ogłoszeniodawcy:
    prywatny
    Informacje dodatkowe:
    balkon garaż/miejsce parkingowe

    Opis

    ID: 67562808

    Chcesz mieć na oku podobne nieruchomości?

    Włącz powiadomienia i nie przegap okazji

    Historia i statystyki

    Ostatnia aktualizacja: 27.12.2025

    Data

    Zmiana

    Cena

    XXXXXXXX
    XXXXXXXX
    XXXXXXXX
    XXXXXXXX
    XXXXXXXX
    XXXXXXXX
    XXwyświetleń
    XXrazy zapisano

    Zaloguj się lub załóż konto, aby otrzymać dostęp do pełnej historii ogłoszenia, w tym zmian ceny

    Mapa

    Bieńkowice, Krzyki, Wrocław, dolnośląskie

    Iwona

    Oferta prywatna

    Mieszkanie na sprzedażRynek wtórny2 pokojedolnośląskieWrocławKrzykiBieńkowiceMieszk. 2 pok. 38m2, stan deweloperski, dostepne od zaraz
    Otodom.pl

    DOŁĄCZ DO NAS:

    APLIKACJE MOBILNE:

    • Link do aplikacji w AppStore
    • Link do aplikacji w Google Play

    © 2025 Otodom.pl, Grupa OLX sp. z o.o.

    • WARUNKI WSPÓŁPRACY
    • POLITYKA PRYWATNOŚCI