Idź do strony głównej

3-pokojowy dom 60m2 + ogródek Bez Prowizji

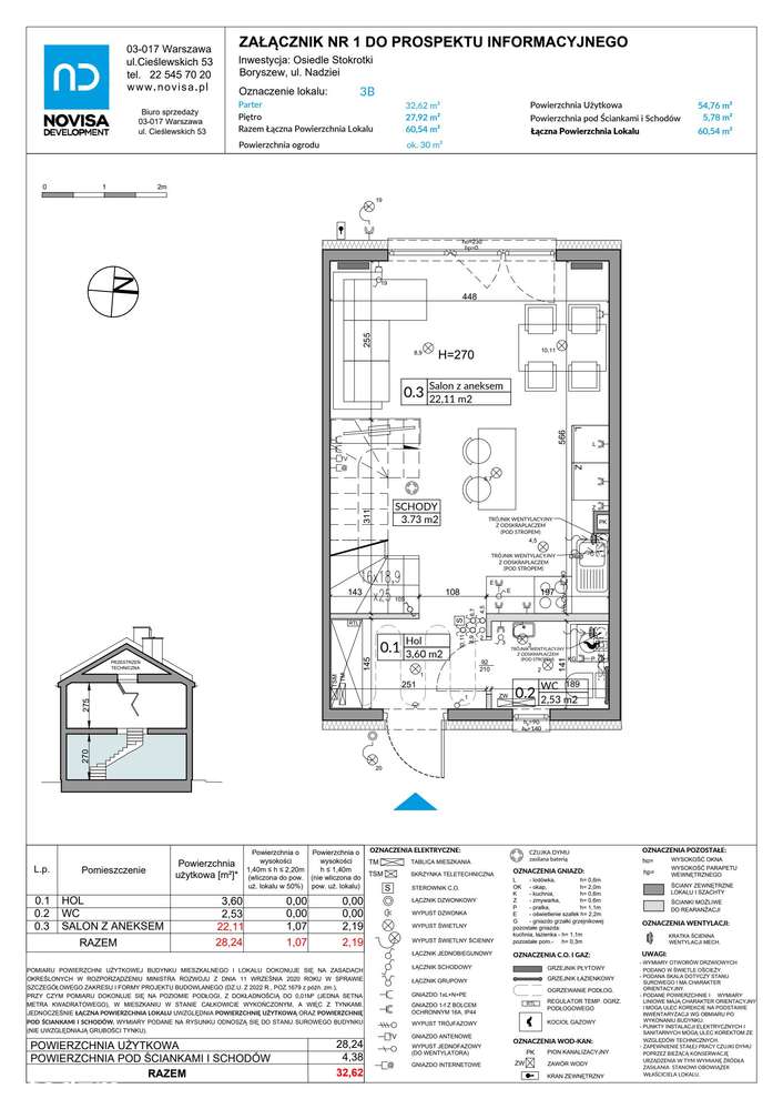
ul. Nadziei, Boryszew, Wiązowna, otwocki, mazowieckie

Inwestycja

Osiedle Stokrotki

3-pokojowy dom 60m2 + ogródek Bez Prowizji

489 000 zł
8 077 zł/m²
ul. Nadziei, Boryszew, Wiązowna, otwocki, mazowieckie

Dom na sprzedaż

Powierzchnia:
60.54 
Liczba pokoi:
3
Rodzaj zabudowy:
bliźniak
Stan wykończenia:
do wykończenia
Rynek:
pierwotny
Dostępne od:
2027-06-30
Typ ogłoszeniodawcy:
deweloper
Czynsz:
brak informacji
Ogrzewanie:
gazowe
Informacje dodatkowe:
brak informacji

Opis

ID: 67425366

Chcesz mieć na oku podobne nieruchomości?

Włącz powiadomienia i nie przegap okazji

Historia i statystyki

Ostatnia aktualizacja: 22.12.2025

Data

Zmiana

Cena

XXXXXXXX
XXXXXXXX
XXXXXXXX
XXXXXXXX
XXXXXXXX
XXXXXXXX
XXwyświetleń
XXrazy zapisano

Zaloguj się lub załóż konto, aby otrzymać dostęp do pełnej historii ogłoszenia, w tym zmian ceny

Mapa

ul. Nadziei, Boryszew, Wiązowna, otwocki, mazowieckie

O deweloperze

Logo: Novisa Development
Novisa Development
Deweloper
ul. Brzeziny 6, 03-256, Warszawa, mazowieckie

Biuro Sprzedaży

Novisa Development
Dom na sprzedażRynek pierwotny3 pokojemazowieckieotwockiWiązownaBoryszew3-pokojowy dom 60m2 + ogródek Bez Prowizji
Otodom.pl

DOŁĄCZ DO NAS:

APLIKACJE MOBILNE:

  • Link do aplikacji w AppStore
  • Link do aplikacji w Google Play

© 2025 Otodom.pl, Grupa OLX sp. z o.o.

  • WARUNKI WSPÓŁPRACY
  • POLITYKA PRYWATNOŚCI