Idź do strony głównej

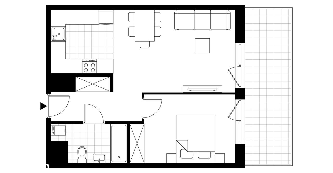
2-pokojowe mieszkanie 45m2 + loggia Bez Prowizji

ul. Zawiszy Czarnego, Osiedle Tysiąclecia, Katowice, śląskie

Inwestycja

Mieszkaj w Mieście - Na Tysiącleciu

2-pokojowe mieszkanie 45m2 + loggia Bez Prowizji

625 000 zł
13 727 zł/m²
ul. Zawiszy Czarnego, Osiedle Tysiąclecia, Katowice, śląskie

Mieszkanie na sprzedaż

Powierzchnia:
45.53 
Liczba pokoi:
2
Ogrzewanie:
brak informacji
Piętro:
> 10/15
Czynsz:
brak informacji
Stan wykończenia:
do wykończenia
Rynek:
pierwotny
Forma własności:
pełna własność
Dostępne od:
2025-05-15
Typ ogłoszeniodawcy:
deweloper
Informacje dodatkowe:
garaż/miejsce parkingowe

Opis

ID: 66347982

Chcesz mieć na oku podobne nieruchomości?

Włącz powiadomienia i nie przegap okazji

Historia i statystyki

Ostatnia aktualizacja: 30.12.2025

Data

Zmiana

Cena

XXXXXXXX
XXXXXXXX
XXXXXXXX
XXXXXXXX
XXXXXXXX
XXXXXXXX
XXwyświetleń
XXrazy zapisano

Zaloguj się lub załóż konto, aby otrzymać dostęp do pełnej historii ogłoszenia, w tym zmian ceny

Mapa

ul. Zawiszy Czarnego, Osiedle Tysiąclecia, Katowice, śląskie

O deweloperze

Logo: Henniger Investment
Henniger Investment
Deweloper
Odkrywców 13, 31-351, Kraków, małopolskie

Biuro Sprzedaży

Henniger Investment
Mieszkanie na sprzedażRynek pierwotny2 pokojeśląskieKatowiceOsiedle Tysiąclecia2-pokojowe mieszkanie 45m2 + loggia Bez Prowizji
Otodom.pl

DOŁĄCZ DO NAS:

APLIKACJE MOBILNE:

  • Link do aplikacji w AppStore
  • Link do aplikacji w Google Play

© 2025 Otodom.pl, Grupa OLX sp. z o.o.

  • WARUNKI WSPÓŁPRACY
  • POLITYKA PRYWATNOŚCI