309 000 zł
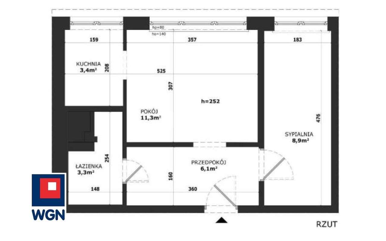
Mieszkanie, 46,50 m², Piotrków Trybunalski
ul. Jagiellońska, Piotrków Trybunalski, łódzkie
- Liczba pokoi
- 3 pokoje
- Powierzchnia
- 46.5 m²
- Cena za metr kwadratowy
- 6645 zł/m²
- Piętro
- 2 piętro
Zobacz opis ogłoszenia
Zobacz opis ogłoszenia
Do sprzedaży trzypokojowe mieszkanie w Piotrkowie Trybunalskim przy ulicy Jagiellońskiej.Mieszkanie o pow. 46,50 m2: trzy pokoje, jasna kuchnia otwarta na pokój dzienny, łazienka z wc, korytarz, balko...
