499 000 zł
***Funkcjonalne – Ciche – Widok – Lokalizacja***
Małgorzaty Samborówny, Tczew, tczewski, pomorskie
- Liczba pokoi
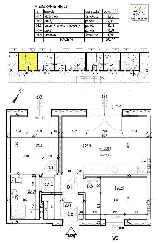
- 3 pokoje
- Powierzchnia
- 59.55 m²
- Cena za metr kwadratowy
- 8380 zł/m²
- Piętro
- 1 piętro
Zobacz opis ogłoszenia
Zobacz opis ogłoszenia
Okazja! Mieszkanie z potencjałem! Zapraszamy Państwa do zapoznania się z ofertą przytulnego mieszkania przy ul. Samborówny – zaledwie 500 m od centrum Tczewa. Mieszkanie jest w doskonałej lokalizacji ...
