1 360 000 zł
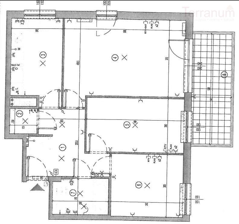
3 pokoje z miejscem postojowym Garażowa
ul. Garażowa, Ksawerów, Mokotów, Warszawa, mazowieckie
- Liczba pokoi
- 3 pokoje
- Powierzchnia
- 68.58 m²
- Cena za metr kwadratowy
- 19 831 zł/m²
- Piętro
- 5 piętro
Zobacz opis ogłoszenia
Zobacz opis ogłoszenia
Trzypokojowe mieszkanie położone na Mokotowie przy ulicy Garażowej. Budynek o podwyższonym standardzie z 2017 roku - deweloper DOM DEVELOPMENTLokal na 5 piętrze - narożny ( wystawa okien wschód ora...
