503 230 zł
Gotowe mieszkanie z tarasem | BEZ CZYNSZU!
ul. Piastowska, Będzin, będziński, śląskie
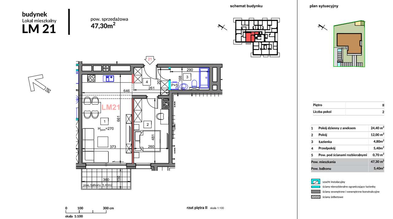
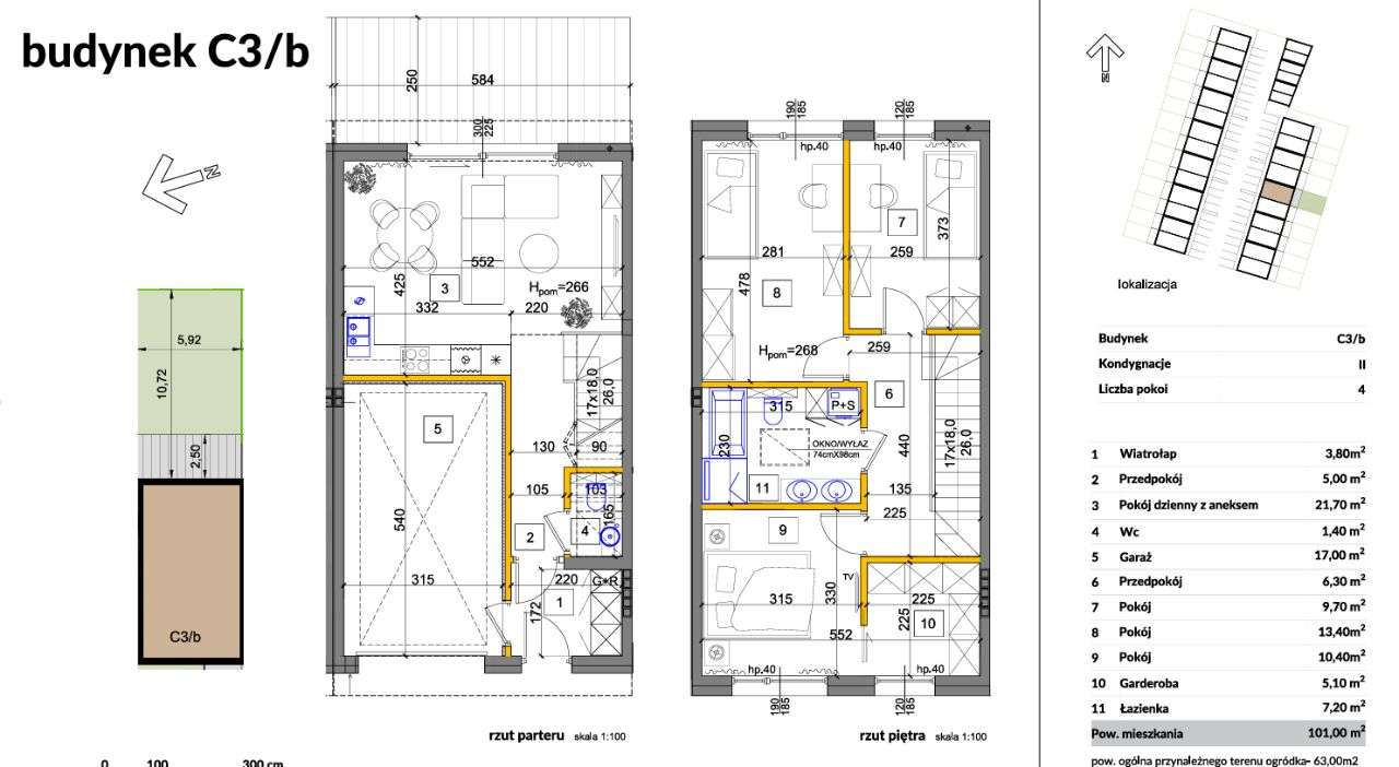
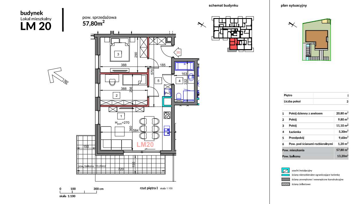
- Liczba pokoi
- 3 pokoje
- Powierzchnia
- 63.7 m²
- Cena za metr kwadratowy
- 7900 zł/m²
- Piętro
- 1 piętro
Zobacz opis ogłoszenia
Zobacz opis ogłoszenia
Osiedle ma charakter BEZCZYNSZOWY, a opłata administracyjna wynosi jedynie 55 zł/mc.Mieszkanie jest ekonomiczne w utrzymaniu.Wysoki standard deweloperski - indywidualny kocioł gazowy kondensacyjny dwu...
