1 200 000 zł
Odkryj Swój Nowy Dom wolnostojący przy lesie.
ul. Jałowcowa, Balice, Zabierzów, krakowski, małopolskie
- Liczba pokoi
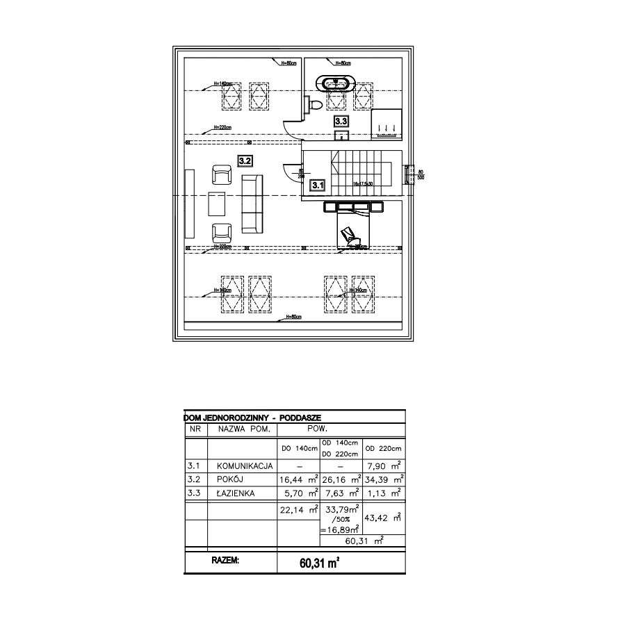
- 6 pokoi
- Powierzchnia
- 177.45 m²
- Cena za metr kwadratowy
- 6762 zł/m²
Zobacz opis ogłoszenia
Zobacz opis ogłoszenia
Marzysz o życiu w otoczeniu natury, ale z szybkim dostępem do centrum miasta ? Enklawa Jurajska to prestiżowe osiedle w Balicach (przy Alei Jurajskiej), które idealnie łączy te dwa światy.Oferujemy do...
