639 000 zł
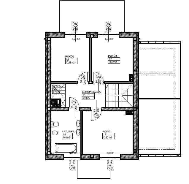
Czeladź - dom w zabudowie szeregowej o pow.124m2
Czeladź, będziński, śląskie
- Liczba pokoi
- 4 pokoje
- Powierzchnia
- 124 m²
- Cena za metr kwadratowy
- 5153 zł/m²
Zobacz opis ogłoszenia
Zobacz opis ogłoszenia
Na sprzedaż wyjątkowy dom w zabudowie szeregowej o powierzchni użytkowej 124 m², zlokalizowany w malowniczej i spokojnej okolicy Czeladzi, idealny dla osób ceniących bliskość natury oraz szybki dostęp...
