1 650 000 zł
Dom na sprzedaż, Jeziora Wielkie, 6 pokoi
Wola Kożuszkowa, Jeziora Wielkie, mogileński, kujawsko-pomorskie
- Liczba pokoi
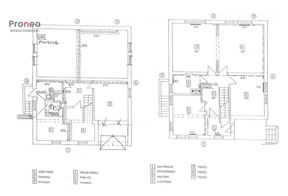
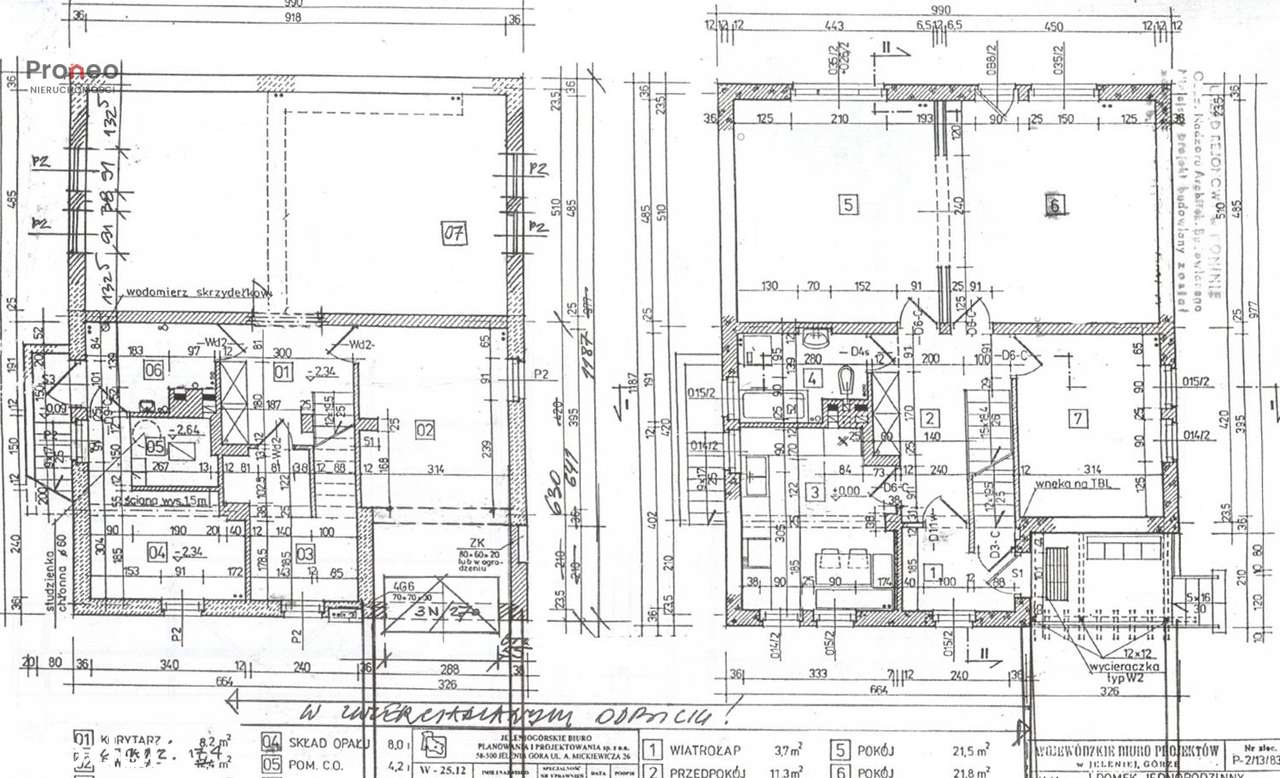
- 6 pokoi
- Powierzchnia
- 198 m²
- Cena za metr kwadratowy
- 8333 zł/m²
Zobacz opis ogłoszenia
Zobacz opis ogłoszenia
Okazała nieruchomość z potencjałem gospodarczym
Przedstawiamy Państwu dom wraz z zabudowaniami gospodarczymi, ogrodem oraz dodatkowym terenem do wykorzystania według własnych potrzeb.
Główne...
