2 999 000 zł
Dwa nietuzinkowe apartamenty 300 metrów od plaży
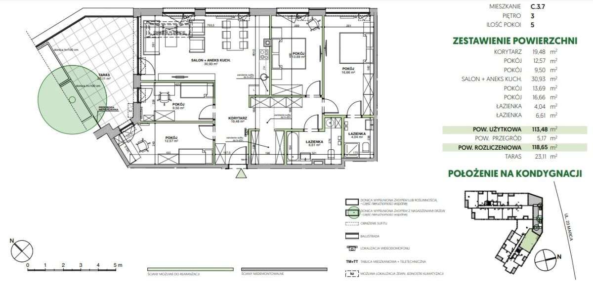
ul. Helska, Dolny Sopot - Haffnera, Dolny Sopot, Sopot, pomorskie
- Liczba pokoi
- 5 pokoi
- Powierzchnia
- 121.98 m²
- Cena za metr kwadratowy
- 24 586 zł/m²
- Piętro
- parter
Zobacz opis ogłoszenia
Zobacz opis ogłoszenia
DWA NIETUZINKOWE APARTAMENTY WYRÓŻNIAJĄCE SIĘ PONAD DOTYCHCZASOWY STANDARD DOSTĘPNY NA RYNKUZaledwie 300 m od plaży | Prestiżowa lokalizacja w Sopocie Dolnym | Zaciszna okolica | Unikalne wnętrza | Ni...

