2 095 016 zł
Apartament 100m² z loggią | blisko centrum | NOHO
Krowodrza Górka, Prądnik Biały, Kraków, małopolskie
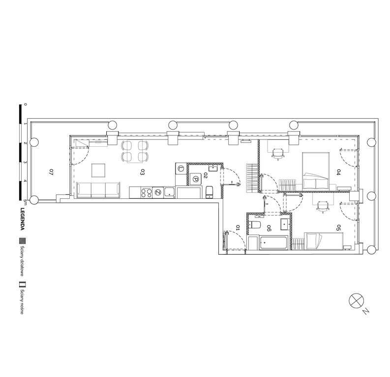
- Liczba pokoi
- 4 pokoje
- Powierzchnia
- 100.24 m²
- Cena za metr kwadratowy
- 20 900 zł/m²
- Piętro
- 2 piętro
Zobacz opis ogłoszenia
Zobacz opis ogłoszenia
Newstate REI ma przyjemność zaprezentować ofertę sprzedaży apartamentu klasy premium, zaprojektowanego z myślą o osobach oczekujących najwyższego standardu, komfortu oraz prestiżowej lokalizacji w Kra...
