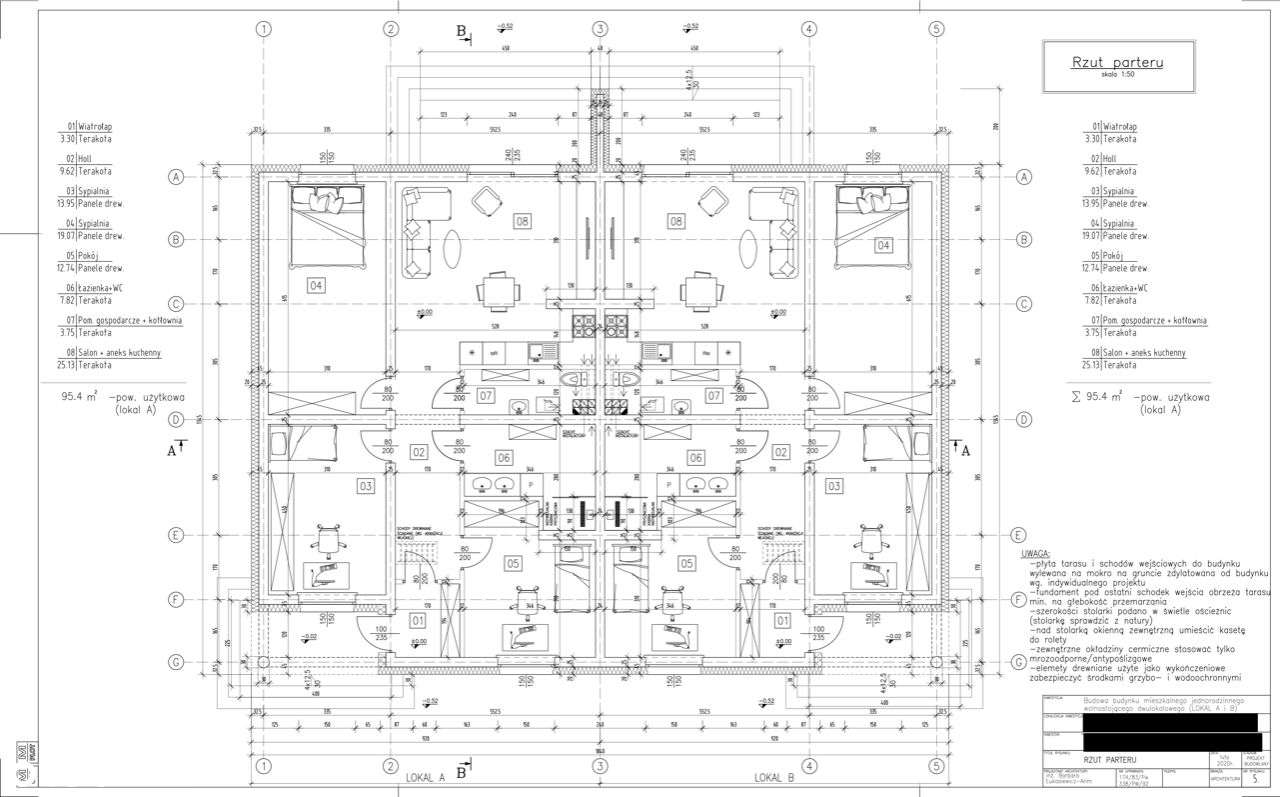
729 000 zł
Rokietnica Centrum ul.Paryska, pow. 100,82m2
Rokietnica, Rokietnica, poznański, wielkopolskie
- Liczba pokoi
- 4 pokoje
- Powierzchnia
- 100.82 m²
- Cena za metr kwadratowy
- 7231 zł/m²
Zobacz opis ogłoszenia
Zobacz opis ogłoszenia
Witam.Na sprzedaż posiadam domy w samym centrum Rokietnicy.Opis nieruchomości:Na powierzchnię 100,82m2 składają się : otwarta przestrzeń salonu z jadalnią i kuchnią, duży przedsionek, 2 łazienki, 3 po...

