Apartament z widokiem na rzekę Warta Poznań brak prowizji, brak PCC
Starołęka Wielka, Nowe Miasto, Poznań, wielkopolskie
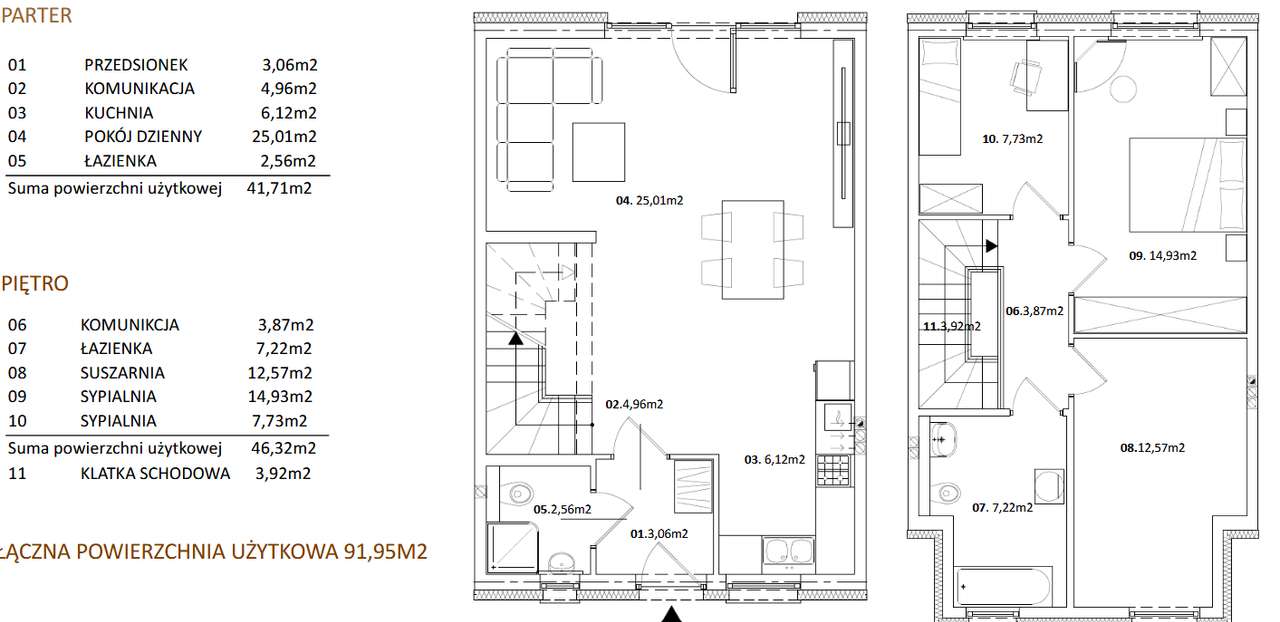
- Liczba pokoi
- 4 pokoje
- Powierzchnia
- 79.35 m²
- Cena za metr kwadratowy
- 12 900 zł/m²
- Piętro
- parter
Adres siedziby: Poznań, ul. Głogowska 216

Liczba ogłoszeń: 8
Sortuj
Apartament z widokiem na rzekę Warta Poznań brak prowizji, brak PCC
Starołęka Wielka, Nowe Miasto, Poznań, wielkopolskie
Mieszkanie 2 pokojowe | bliskośc Lasku Marcelińskiego | brak prowizji
ul. Wałbrzyska, Marcelin, Grunwald, Poznań, wielkopolskie
Nowe Mieszkanie 4 pokojowe | Podolany | Brak prowzji | Brak PCC |
ul. Jasielska, Podolany, Jeżyce, Poznań, wielkopolskie
Mieszkanie 2 pokojowe | Super Cena | Brak prowizji | Podolany
ul. Jasielska, Podolany, Jeżyce, Poznań, wielkopolskie
Dom w zabudowie szeregowej pod Poznaniem – gotowy do wykończenia 0% pr
Czapury, Mosina, poznański, wielkopolskie
Nowy dom 102 m² z ogrodem, 20 min od Poznania – brak prowizji brak PCC
Radzewo, Kórnik, poznański, wielkopolskie