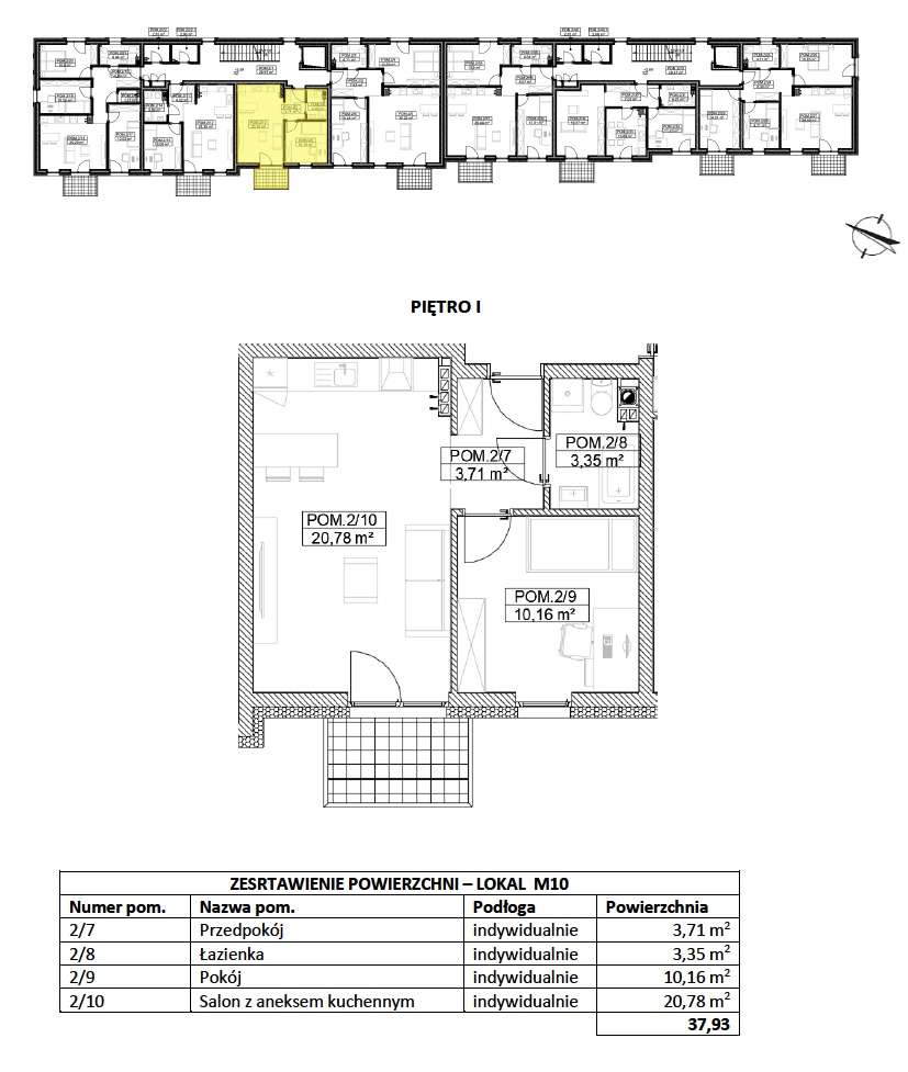
489 000 zł
Nowe, wykończone mieszkanie 2-pokojowe Nowy Zawiszów
ul. Bolesława Krzywoustego, Świdnica, świdnicki, dolnośląskie
- Liczba pokoi
- 2 pokoje
- Powierzchnia
- 39 m²
- Cena za metr kwadratowy
- 12 538 zł/m²
- Piętro
- 2 piętro
Zobacz opis ogłoszenia
Zobacz opis ogłoszenia
Na sprzedaż funkcjonalne i słoneczne dwupokojowe mieszkanie z balkonem – Nowy Zawiszów.Oferuję do sprzedaży zupełnie nowe, wykończone w wysokim standardzie mieszkanie o powierzchni 39 m², położone na ...
