1 096 032 zł
Nowe Apartamenty Dworska – Ptasie | różne metraże
Załęska Hałda-Brynów, Katowice, śląskie
- Liczba pokoi
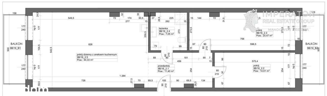
- 2 pokoje
- Powierzchnia
- 97.86 m²
- Cena za metr kwadratowy
- 11 200 zł/m²
- Piętro
- parter
Zobacz opis ogłoszenia
Zobacz opis ogłoszenia
Nowe Apartamenty na Osiedlu Dworska – Ptasie, Katowice BrynówZamieszkaj w miejscu, które łączy komfort, elegancję i naturę.Nowe Osiedle Dworska na katowickim Brynowie torenomowanai...
