399 000 zł
Witajcie w własnej bajce
ul. Ludwika Waryńskiego, Racibórz, raciborski, śląskie
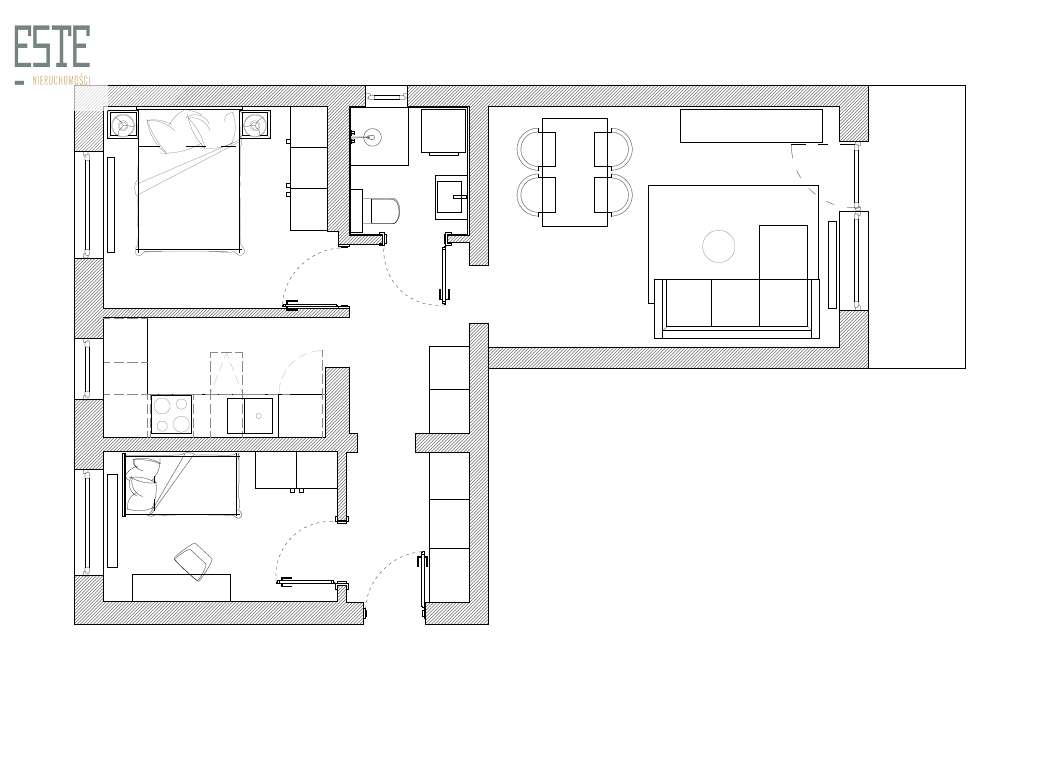
- Liczba pokoi
- 4 pokoje
- Powierzchnia
- 80 m²
- Cena za metr kwadratowy
- 4988 zł/m²
- Piętro
- 3 piętro
Zobacz opis ogłoszenia
Zobacz opis ogłoszenia
DNI OTWARTE 29.11.2025r godzina 11:00 - 14:00Proszę o wcześniejsze telefoniczne potwierdzenie wizyty.To mieszkanie to prawdziwa perełka na rynku nieruchomości, idealne dla tych, którzy marzą o komfort...
