836 125 zł
KLIMATYCZNE MIESZKANIE*** WILANÓW *** DEWELOPERSKIE
ul. Ruczaj, Powsinek, Wilanów, Warszawa, mazowieckie
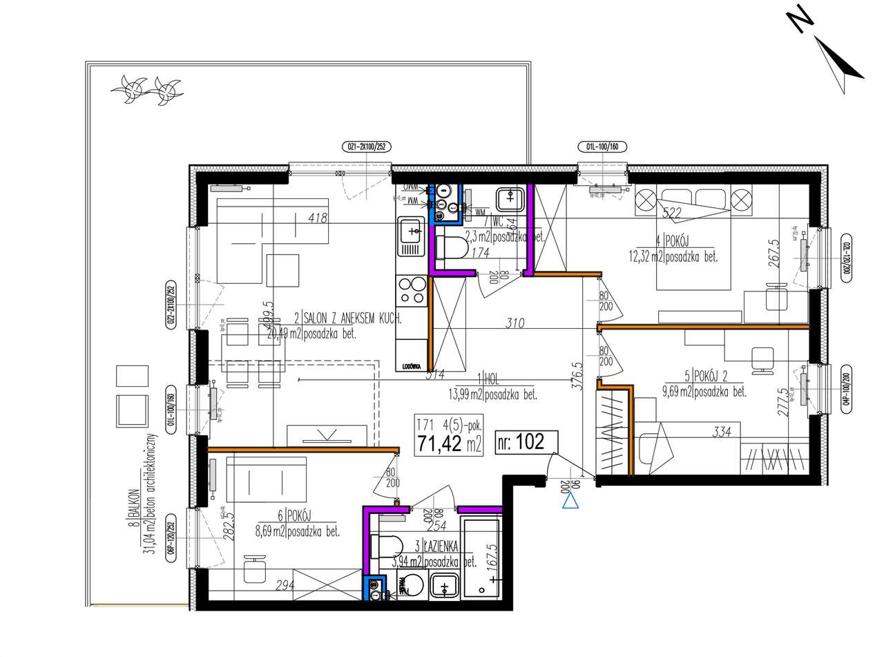
- Liczba pokoi
- 2 pokoje
- Powierzchnia
- 67.8 m²
- Cena za metr kwadratowy
- 12 332 zł/m²
- Piętro
- 2 piętro
Zobacz opis ogłoszenia
Zobacz opis ogłoszenia
RUCZAJ PARK – APARTAMENT PRZESTRZENI I KOMFORTU W WILANOWIE ZAWADACHNieruchomość dostępna jest wyłącznie w naszej agencji w ramach umowy na wyłącznośćTo mieszkanie od pierwszej chwili urzeka skosami, ...
