660 000 zł
Zamieszkaj w otulinie lasu z ogródkiem i parkingie
ul. Adama Mickiewicza, Żukowo - miasto, Żukowo, kartuski, pomorskie
- Liczba pokoi
- 4 pokoje
- Powierzchnia
- 89.8 m²
- Cena za metr kwadratowy
- 7350 zł/m²
- Piętro
- 1 piętro
Zobacz opis ogłoszenia
Zobacz opis ogłoszenia
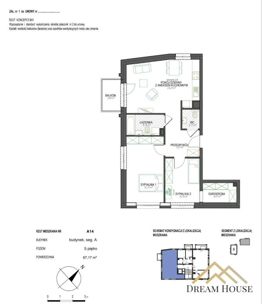
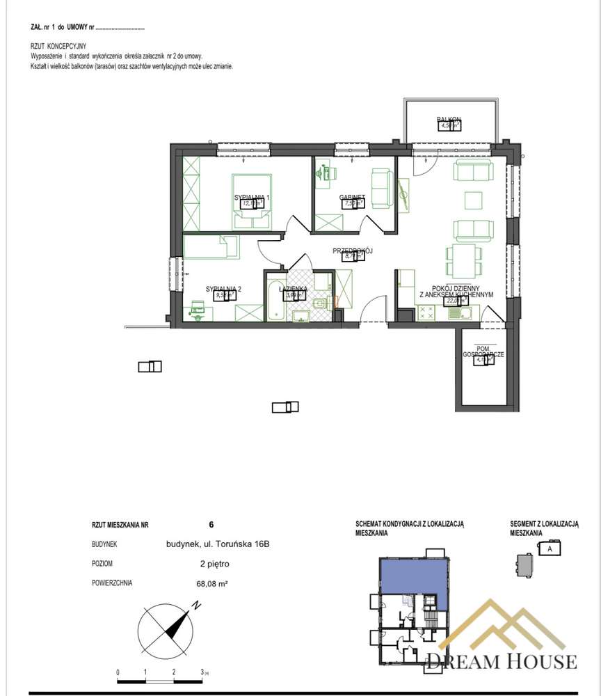
Tylko u Nas!W cenie dwa miejsca parkingowe!Zapraszam do zapoznania się z ofertą sprzedaży atrakcyjnego mieszkania 4-pokojowego o powierzchni 89,8 m², zlokalizowanego przy ul. Adama Mickiewicza w Żukow...
