305 000 zł
M4 Bezczynszowe - Kochłowice!
Kochłowice, Ruda Śląska, śląskie
- Liczba pokoi
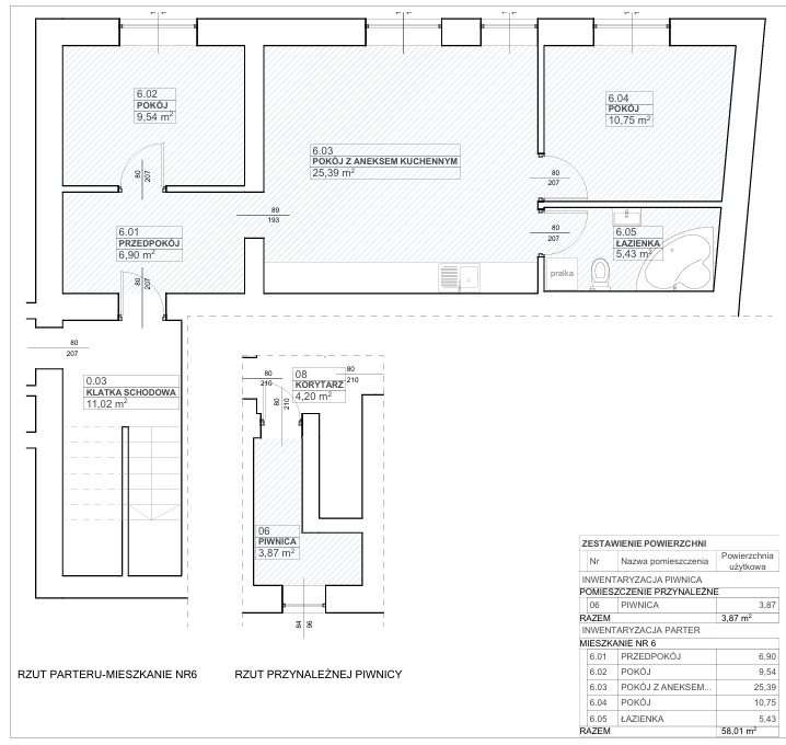
- 3 pokoje
- Powierzchnia
- 58.01 m²
- Cena za metr kwadratowy
- 5258 zł/m²
- Piętro
- parter
Zobacz opis ogłoszenia
Zobacz opis ogłoszenia
Przedstawiam Państwudo sprzedażyświetne 3-pokojowe mieszkanieo pow. 58m2, mieszczące się w świetnej lokalizacji: Rudzie Śląskiej - dzielnicy Kochłowice przy ul. Wyzwolenia.Lokal znajduje się na parter...
