899 000 zł
Sidzina | Gotowe Do Odbioru | 6 pokoi | Promocja
ul. Zofii Nałkowskiej, Olszyny, Dębniki, Kraków, małopolskie
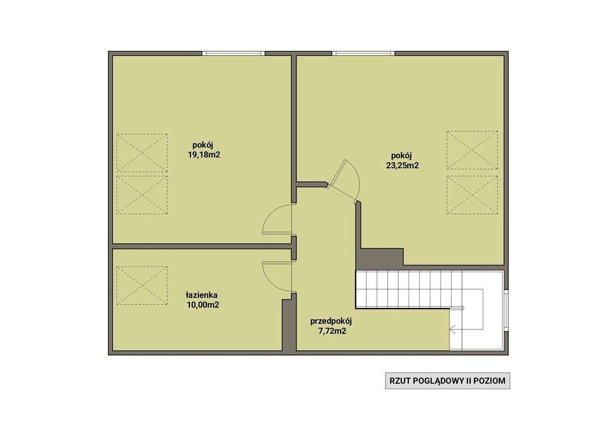
- Liczba pokoi
- 6 pokoi
- Powierzchnia
- 112.35 m²
- Cena za metr kwadratowy
- 8002 zł/m²
- Piętro
- parter
Zobacz opis ogłoszenia
Zobacz opis ogłoszenia
OFERTA WYŁĄCZNIEW BIURZE NIERUCHOMOŚCI DANAXPROMOCJA 899.000 zł !!!KUPUJĄCY NIE PŁACI PROWIZJI ORAZPODATKU PCCSidzina- komfortowyapartament 6 pokojowy o pow. 112,35m2,zogródkiem o pow. ok.25 m2 (dostę...
