399 000 zł
DOSKONAŁE NA INWESTYCJĘ POD WYNAJEM CENTRUM KOŁO PKP
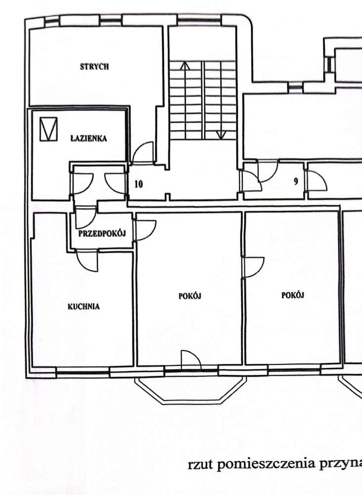
pl. Oddziałów Młodzieży Powstańczej, Śródmieście, Katowice, śląskie
- Liczba pokoi
- 2 pokoje
- Powierzchnia
- 73.6 m²
- Cena za metr kwadratowy
- 5421 zł/m²
- Piętro
- 4 piętro
Zobacz opis ogłoszenia
Zobacz opis ogłoszenia
Mieszkanie bezpośrednio od właściciela bez prowizji.MIESZKANIE W ŚCISŁYM CENTRUM KATOWIC KOŁO DWORCA PKP-DOSKONAŁE NA INWESTYCJĘ NA WYNAJEM -CAŁA KAMIENICA PROWADZONY JEST NAJEM MIESZKAŃ W TYM RÓWNIEŻ...

