629 000 zł
Dom w cenie mieszkania - Osiedle Kusocińskiego
ul. gen. Stefana Roweckiego "Grota", Świdnik, świdnicki, lubelskie
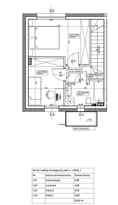
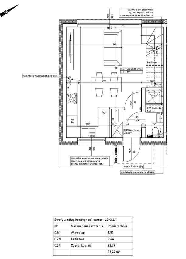
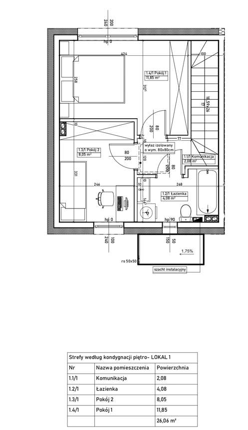
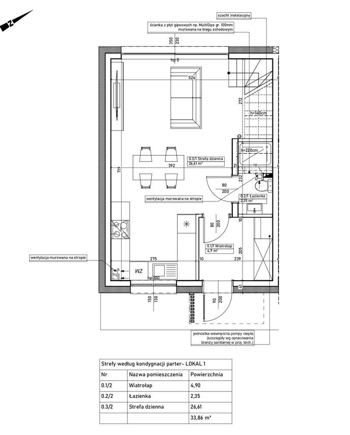
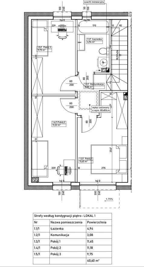
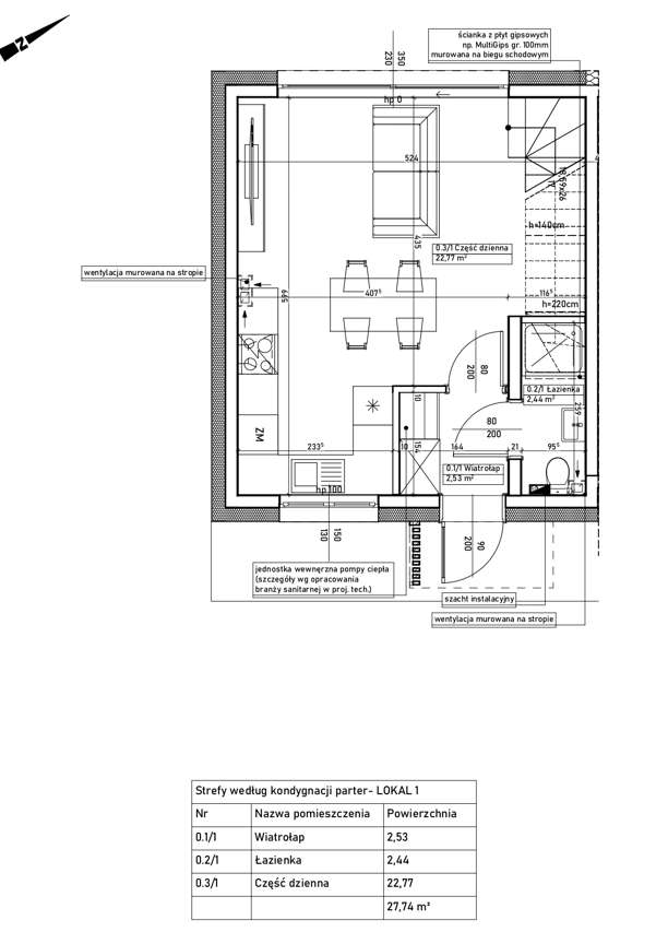
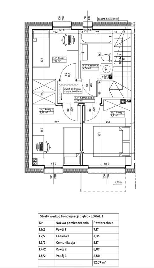
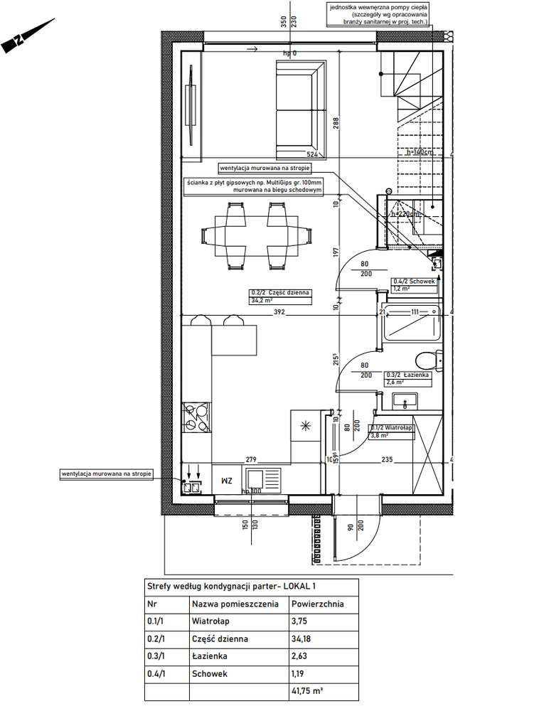
- Liczba pokoi
- 4 pokoje
- Powierzchnia
- 83.21 m²
- Cena za metr kwadratowy
- 7559 zł/m²
- Piętro
- parter
Zobacz opis ogłoszenia
Zobacz opis ogłoszenia
START SPRZEDAŻY – NOWE DOMY W ŚWIDNIKUInwestycja DURADO | Osiedle RoweckiegoRozpoczynamy przedsprzedaż nowej inwestycji w centrum Świdnika. Dla pierwszych rezerwacji przygotowaliśmy specjalne warunki ...
