149 720 zł
Kawalerki Francuska/Wojewódzka
Osiedle Paderewskiego-Muchowiec, Katowice, śląskie
- Liczba pokoi
- 1 pokój
- Powierzchnia
- 15.76 m²
- Cena za metr kwadratowy
- 9500 zł/m²
- Piętro
- 4 piętro
Zobacz opis ogłoszenia
Zobacz opis ogłoszenia
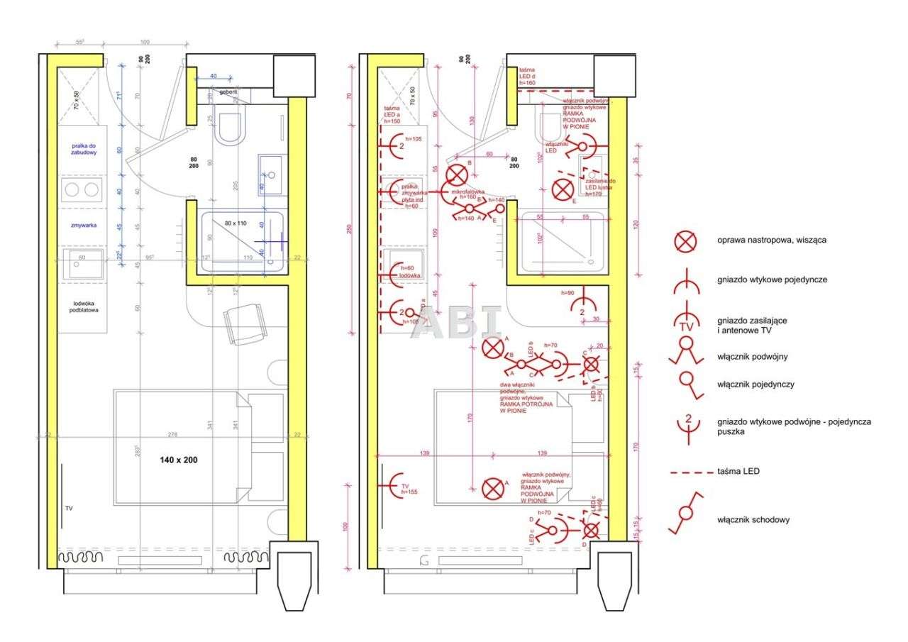
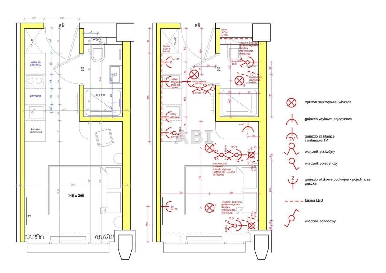
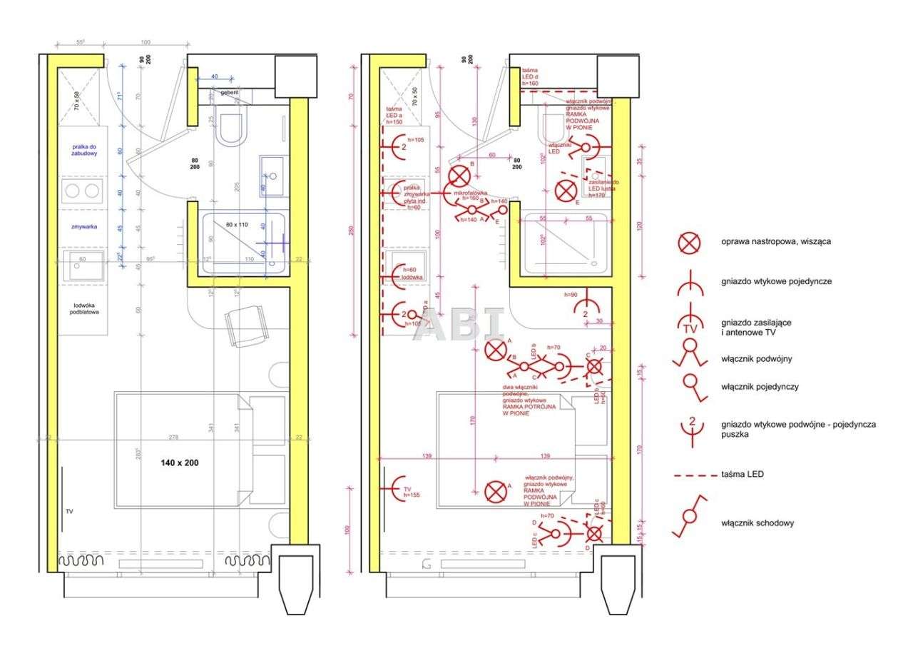
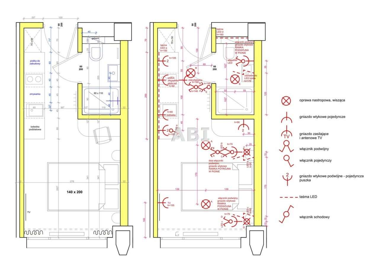
APARTAMENTY W BUDYNKU TURYSTYCZNYM WŁASNĄ Z KSIĘGĄ WIECZYSTĄ w samym sercu Katowic przy ul. Reymonta 24 (obok Sejmiku Śląskiego).Uniwersytet Medyczny – 1,8 kmUniwersytet Śląskie – 1.6 kmMa...
