699 000 zł
Mieszkanie - Straszyn Modre
ul. Saturna, Straszyn, Pruszcz Gdański, gdański, pomorskie
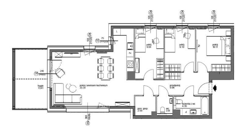
- Liczba pokoi
- 3 pokoje
- Powierzchnia
- 55 m²
- Cena za metr kwadratowy
- 12 709 zł/m²
- Piętro
- 1 piętro
Zobacz opis ogłoszenia
Zobacz opis ogłoszenia
Apartament 3 pokojowy z garażem na prestiżowym osiedlu Modre w StraszynieLokalizacjaOsiedle Modre powstało jako podmiejska dzielnica, spełni wymagania najbardziej wymagających klientów ceniących sobie...
