Idź do strony głównej

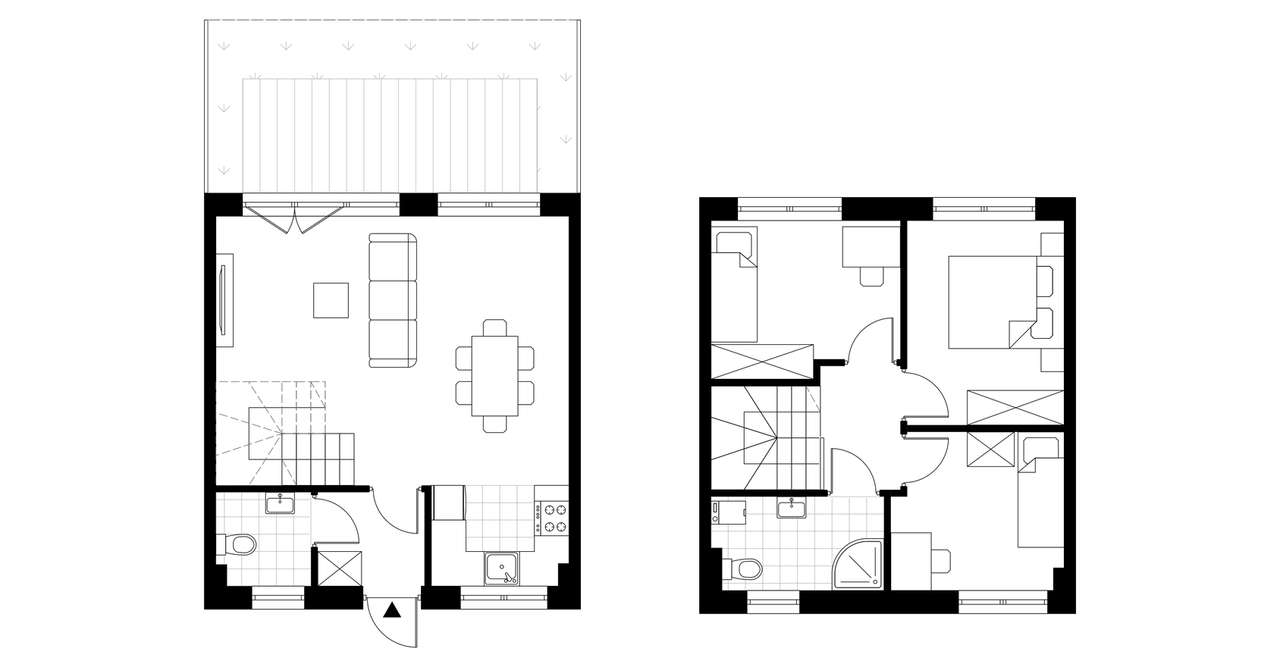
4-pokojowy dom 68m2 + ogródek Bez Pośredników

Skałowska, Gwiazdowo, Kostrzyn, poznański, wielkopolskie

Inwestycja

Gwiazdowo (domy)

4-pokojowy dom 68m2 + ogródek Bez Pośredników

499 000 zł
7 288 zł/m²
Skałowska, Gwiazdowo, Kostrzyn, poznański, wielkopolskie

Dom na sprzedaż

Powierzchnia:
68.47 
Liczba pokoi:
4
Rodzaj zabudowy:
brak informacji
Stan wykończenia:
do wykończenia
Rynek:
pierwotny
Dostępne od:
2025-12-12
Typ ogłoszeniodawcy:
deweloper
Czynsz:
brak informacji
Ogrzewanie:
brak informacji
Informacje dodatkowe:
brak informacji

Opis

ID: 66377884

Chcesz mieć na oku podobne nieruchomości?

Włącz powiadomienia i nie przegap okazji

Historia i statystyki

Ostatnia aktualizacja: 6.12.2025

Data

Zmiana

Cena

XXXXXXXX
XXXXXXXX
XXXXXXXX
XXXXXXXX
XXXXXXXX
XXXXXXXX
XXwyświetleń
XXrazy zapisano

Zaloguj się lub załóż konto, aby otrzymać dostęp do pełnej historii ogłoszenia, w tym zmian ceny

Mapa

Skałowska, Gwiazdowo, Kostrzyn, poznański, wielkopolskie

O deweloperze

Logo: Invest Complex
Invest Complex
Deweloper
ul. Prosta 15, 62-020, Garby, poznański, wielkopolskie

Kacper Haidar

Invest Complex
Dom na sprzedażRynek pierwotny4 pokojewielkopolskiepoznańskiKostrzynGwiazdowo4-pokojowy dom 68m2 + ogródek Bez Pośredników
Otodom.pl

DOŁĄCZ DO NAS:

APLIKACJE MOBILNE:

  • Link do aplikacji w AppStore
  • Link do aplikacji w Google Play

© 2025 Otodom.pl, Grupa OLX sp. z o.o.

  • WARUNKI WSPÓŁPRACY
  • POLITYKA PRYWATNOŚCI